星野ビル

情報更新日:2026年03月14日
物件名
星野ビル
所在地
東京都港区浜松町1-15-6
アクセス
山手線 浜松町駅 徒歩2分
都営浅草線 大門駅 徒歩2分
竣工年月
1984年12月
規模
地上4階

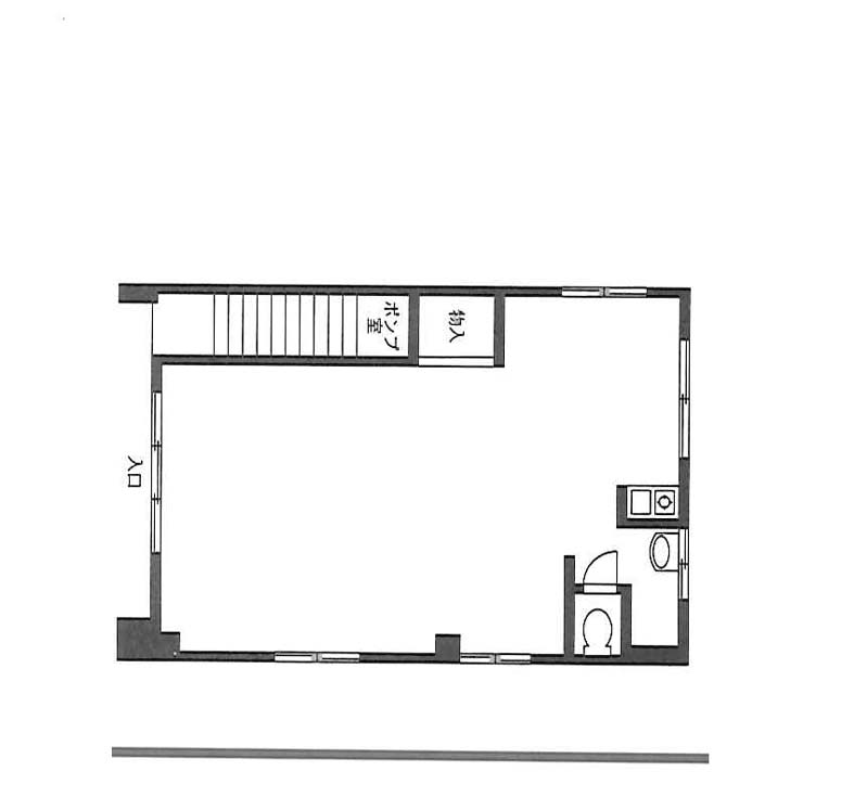
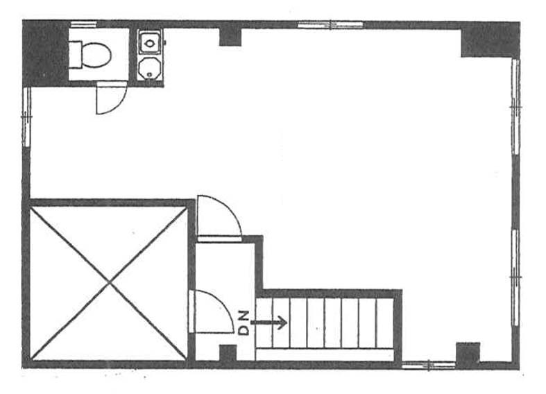
フォトギャラリー

間取り 区画 面積 賃料
(管理費含)
保証金・敷金 入居日 用途仕様
2 15
12,000円/坪
180,000円(税別)
6ヶ月 即入居可能 事務所
タイルカーペット
1 15.5
要問合せ 要問合せ 要問合せ 事務所
タイルカーペット

貸室面積合計 15

※複数の貸室合計も表示されます。

お電話でのお問い合わせ

03-6278-5609

平日9:00 ~ 18:00(土日祝除く)

STEP 1
お問い合わせ・ご相談
STEP 2
現地見学
STEP 3
ご契約・お手続き
STEP 4
引き渡し・運用サポート

近隣情報

郵便局
世界貿易センター内郵便局
東京都港区浜松町2-4-1
銀行
みずほ銀行 浜松町支店
東京都港区浜松町2-4-1

物件概要

基準階坪数
15坪
耐震
対応済み

※1981年6月1日以降に確認申請された建物は新耐震基準に該当しますが、当サイトでは原則として1982年6月1日以降に竣工した物件を新耐震として表記しています。

設備詳細

空調
個別空調
トイレ
男女共同
エレベーター
なし

主な入居テナント

  • スリーナイン株式会社
スタッフコメント
港区浜松町1丁目に位置する「星野ビル」は、JR山手線「浜松町」駅および都営浅草線「大門」駅からともに徒歩2分の立地です。主要ターミナルに近く、複数路線を使い分けた移動を組み立てやすい点が特徴です。地上4階建てのS造で、周辺の街並みと調和したコンパクトな規模感となっています。個別空調を備えており、立地条件を重視した業務利用を検討しやすい物件です。