ニッセイ虎ノ門ビル

情報更新日:2026年03月06日
物件名
ニッセイ虎ノ門ビル
所在地
東京都港区虎ノ門3-12-1
アクセス
日比谷線 神谷町駅 徒歩2分
竣工年月
1992年01月
規模
地上16階 / 地下3階

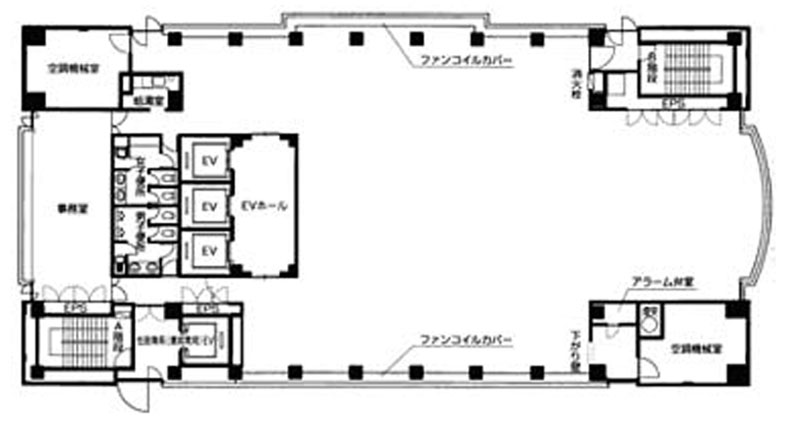
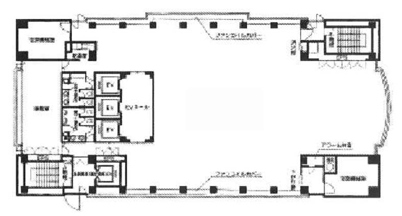
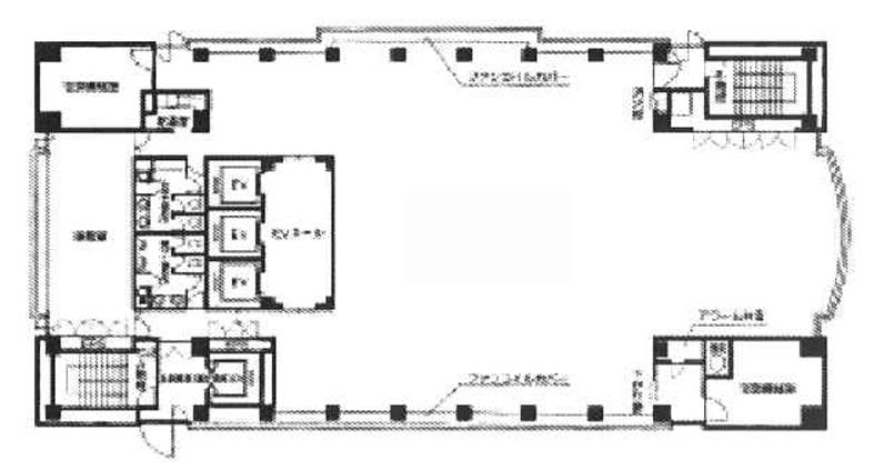
フォトギャラリー

間取り 区画 面積 賃料
(管理費含)
保証金・敷金 入居日 用途仕様
13 157
要問合せ 要問合せ 2026年05月01日 事務所
OAフロアー
3 130
要問合せ 要問合せ 要問合せ 事務所
OAフロアー
4 167
要問合せ 要問合せ 要問合せ 事務所
OAフロアー
6 165
要問合せ 要問合せ 要問合せ 事務所
OAフロアー
7 167
要問合せ 要問合せ 要問合せ 事務所
OAフロアー
8 166.85
要問合せ 要問合せ 要問合せ 事務所
OAフロアー
9 166.85
要問合せ 要問合せ 要問合せ 事務所
OAフロアー
10 165
要問合せ 要問合せ 要問合せ 事務所
OAフロアー
11 165
要問合せ 要問合せ 要問合せ 事務所
OAフロアー
12 165
要問合せ 要問合せ 要問合せ 事務所
OAフロアー

貸室面積合計 157

※複数の貸室合計も表示されます。

お電話でのお問い合わせ

03-6278-5609

平日9:00 ~ 18:00(土日祝除く)

STEP 1
お問い合わせ・ご相談
STEP 2
現地見学
STEP 3
ご契約・お手続き
STEP 4
引き渡し・運用サポート

近隣情報

郵便局
神谷町郵便局
東京都港区虎ノ門4-2-12
銀行
三菱UFJ銀行 虎ノ門支店
東京都港区虎ノ門2-3-17

物件概要

基準階坪数
165坪
耐震
対応済み

※1981年6月1日以降に確認申請された建物は新耐震基準に該当しますが、当サイトでは原則として1982年6月1日以降に竣工した物件を新耐震として表記しています。

設備詳細

空調
個別空調
トイレ
男女別
エレベーター
3基

主な入居テナント

  • 株式会社ユーエスエス
  • 株式会社2nd place
スタッフコメント
神谷町駅から徒歩2分に位置し、駅からの近さを重視する場合にも把握しやすい立地です。虎ノ門エリアにあり、周辺には業務利用を想定した建物が集まる環境といえます。地上16階建てのオフィスビルで、拠点利用を前提とした一定の規模感です。個別空調を採用し、エレベーター3基を備えており、来訪対応や日常のフロア移動にも配慮された設備条件です。複数方面への移動を前提に、業務利用を想定した検討を進めやすい建物です。