藤和八丁堀ビル

情報更新日:2026年05月19日
物件名
藤和八丁堀ビル
所在地
東京都中央区八丁堀2-20-1
アクセス
日比谷線 八丁堀駅 徒歩2分
東西線 茅場町駅 徒歩5分
都営浅草線 宝町駅 徒歩8分
都営浅草線 日本橋駅 徒歩10分
竣工年月
1991年03月
規模
地上8階 / 地下1階

フォトギャラリー

間取り 区画 面積 賃料
(管理費含)
保証金・敷金 入居日 用途仕様
2 71.35
要問合せ 12ヶ月 即入居可能 事務所
タイルカーペット
3 71.35
要問合せ 12ヶ月 2026年09月06日 事務所
タイルカーペット

貸室面積合計 142.7

※複数の貸室合計も表示されます。

お電話でのお問い合わせ

03-6278-5609

平日9:00 ~ 18:00(土日祝除く)

STEP 1
お問い合わせ・ご相談
STEP 2
現地見学
STEP 3
ご契約・お手続き
STEP 4
引き渡し・運用サポート

近隣情報

郵便局
中央八丁堀郵便局
東京都中央区八丁堀2-9-1
銀行
三菱UFJ銀行 新富町支店
東京都中央区新富1-18-1

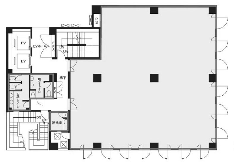
物件概要

基準階坪数
69.33坪
耐震
対応済み

※1981年6月1日以降に確認申請された建物は新耐震基準に該当しますが、当サイトでは原則として1982年6月1日以降に竣工した物件を新耐震として表記しています。

設備詳細

空調
個別空調
トイレ
男女別
エレベーター
2基

主な入居テナント

  • 藤沢工業株式会社 東京支店
  • 日本化工機株式会社
  • 株式会社ジェイ・トラスト
  • ファミリーマート 八丁堀二丁目店
スタッフコメント
中央区八丁堀2丁目に位置する「藤和八丁堀ビル」は、東京メトロ日比谷線「八丁堀」駅徒歩2分に加え、茅場町・宝町・日本橋の各駅も徒歩圏内で、複数路線を利用できる交通利便性が魅力です。地下1階地上8階建てのSRC造で、周辺は落ち着きのあるオフィスエリアが広がります。個別空調、男女別トイレ、エレベーター2基、機械警備を備え、24時間使用可能。立地と設備のバランスが取れた、安定感のあるオフィス環境です。