ルミナス

情報更新日:2026年04月16日
物件名
ルミナス
所在地
東京都中央区日本橋小伝馬町15-19
アクセス
総武本線 馬喰町駅 徒歩3分
日比谷線 小伝馬町駅 徒歩3分
都営新宿線 馬喰横山駅 徒歩5分
都営浅草線 東日本橋駅 徒歩7分
竣工年月
2007年12月
規模
地上9階

フォトギャラリー

間取り 区画 面積 賃料
(管理費含)
保証金・敷金 入居日 用途仕様
4 55.37
要問合せ 12ヶ月 2026年06月01日 事務所
OAフロアー

貸室面積合計 55.37

※複数の貸室合計も表示されます。

お電話でのお問い合わせ

03-6278-5609

平日9:00 ~ 18:00(土日祝除く)

STEP 1
お問い合わせ・ご相談
STEP 2
現地見学
STEP 3
ご契約・お手続き
STEP 4
引き渡し・運用サポート

近隣情報

郵便局
小伝馬町郵便局
東京都中央区日本橋小伝馬町10-10
銀行
三菱UFJ銀行 大伝馬町支店
東京都中央区日本橋大伝馬町8-1

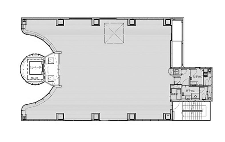
物件概要

基準階坪数
55.37坪
耐震
対応済み

※1981年6月1日以降に確認申請された建物は新耐震基準に該当しますが、当サイトでは原則として1982年6月1日以降に竣工した物件を新耐震として表記しています。

設備詳細

空調
個別空調
トイレ
男女別
エレベーター
1基

主な入居テナント

  • AViC THE PHYSIO STUDIO 日本橋店
  • 株式会社ユニフォームプラザ東京
  • ダイワ化成株式会社 東京営業所
  • 株式会社アラコー 東京オフィス
  • スタンダード・バイオツールズ株式会社
スタッフコメント
中央区日本橋小伝馬町に位置する「ルミナス」は、JR総武本線「馬喰町」駅、東京メトロ日比谷線「小伝馬町」駅がともに徒歩3分と、複数路線を利用できる立地です。地上9階建てのS造で、周辺はオフィス利用を中心とした落ち着いたエリアが形成されています。デザイン性を感じさせる外観が印象的で、個別空調、男女別トイレ、エレベーター1基、機械警備を備え、24時間使用可能。立地の利便性と外観の印象を踏まえ、導入しやすいオフィス環境が整っています。