| 間取り | 区画 | 面積 | 賃料 (管理費含) |
保証金・敷金 | 入居日 | 用途仕様 |
|---|---|---|---|---|---|---|
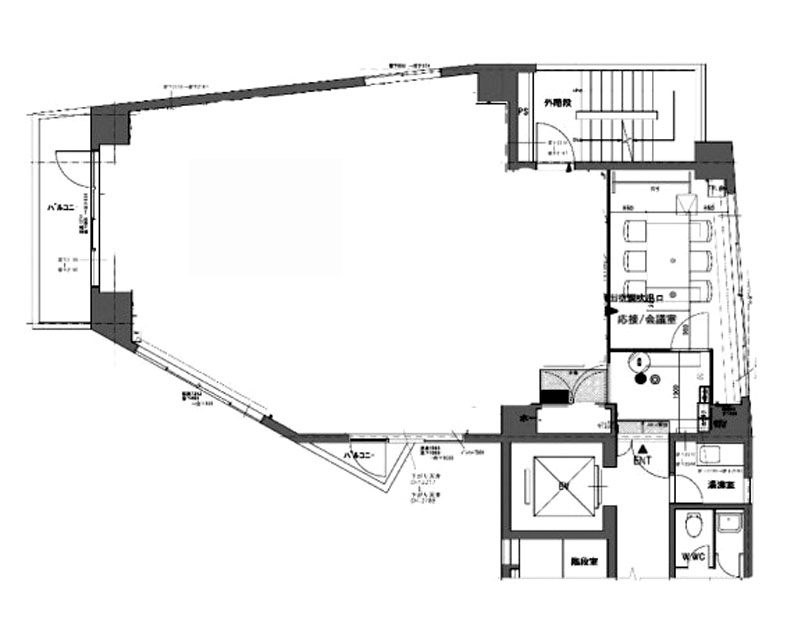
| 3B |
34.6坪 |
17,000円/坪 588,200円(税別) |
8ヶ月 | 即入居可能 |
事務所 タイルカーペット |
|
| 2B |
34.6坪 |
要問合せ | 要問合せ | 要問合せ |
事務所 タイルカーペット |
貸室面積合計 34.6坪
※複数の貸室合計も表示されます。
お電話でのお問い合わせ
03-6278-5609
平日9:00 ~ 18:00(土日祝除く)
STEP 1
お問い合わせ・ご相談
STEP 2
現地見学
STEP 3
ご契約・お手続き
STEP 4
引き渡し・運用サポート
近隣情報
- 郵便局
-
神田郵便局
東京都千代田区神田淡路町2-12
- 銀行
-
三菱UFJ銀行 神田駅前支店
東京都千代田区神田鍛冶町3-6-3
物件概要
- 耐震
- 対応済み
※1981年6月1日以降に確認申請された建物は新耐震基準に該当しますが、当サイトでは原則として1982年6月1日以降に竣工した物件を新耐震として表記しています。
設備詳細
- 空調
- 個別空調
- トイレ
- 男女別
- エレベーター
- 1基
主な入居テナント
- 株式会社カインズサービス 秋葉原オフィス
- 日本養鶏農業協同組合連合会
- 八州建機㈱ 東京営業所
- ティー・アンド・シー株式会社
- TX Japan株式会社
スタッフコメント