新橋シティビル

情報更新日:2026年05月08日
物件名
新橋シティビル
所在地
東京都港区新橋3-1-12
アクセス
都営三田線 内幸町駅 徒歩3分
山手線 新橋駅 徒歩5分
竣工年月
2005年01月
規模
地上9階

フォトギャラリー

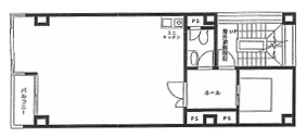
間取り 区画 面積 賃料
(管理費含)
保証金・敷金 入居日 用途仕様
6 12.04
22,000円/坪
264,879円(税別)
要問合せ 2026年07月01日 事務所
OAフロアー

貸室面積合計 12.04

※複数の貸室合計も表示されます。

お電話でのお問い合わせ

03-6278-5609

平日9:00 ~ 18:00(土日祝除く)

STEP 1
お問い合わせ・ご相談
STEP 2
現地見学
STEP 3
ご契約・お手続き
STEP 4
引き渡し・運用サポート

近隣情報

郵便局
新橋四郵便局
東京都港区新橋4-30-6
銀行
三菱UFJ銀行 新橋支店
東京都港区新橋4-3-1

物件概要

基準階坪数
12.04坪
耐震
対応済み

※1981年6月1日以降に確認申請された建物は新耐震基準に該当しますが、当サイトでは原則として1982年6月1日以降に竣工した物件を新耐震として表記しています。

設備詳細

空調
個別空調
トイレ
男女共同
エレベーター
1基

主な入居テナント

  • 有限会社東京特殊効果
  • 港さくらい法律事務所
  • 烏森法律事務所
スタッフコメント
港区新橋3丁目に位置する「新橋シティビル」は、都営三田線「内幸町」駅徒歩3分、JR山手線「新橋」駅徒歩5分と複数路線が利用可能な立地です。新橋エリアのビジネス機能を身近に享受でき、通勤や来訪対応にも便利な環境となっています。2005年竣工、地上9階建てで、エレベーターは1基設置。個別空調を備え、24時間使用可能です。1フロア1テナント仕様のため、独立性を重視した利用にも適しています。