パレスサイド千代田

情報更新日:2026年05月18日
物件名
パレスサイド千代田
所在地
東京都千代田区隼町2-17
アクセス
半蔵門線 半蔵門駅 徒歩1分
有楽町線 麹町駅 徒歩6分
竣工年月
1987年08月
規模
地上8階

フォトギャラリー

間取り 区画 面積 賃料
(管理費含)
保証金・敷金 入居日 用途仕様
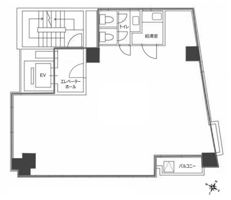
7 27.33
要問合せ 10ヶ月 2026年07月01日 事務所
OAフロアー

貸室面積合計 27.33

※複数の貸室合計も表示されます。

お電話でのお問い合わせ

03-6278-5609

平日9:00 ~ 18:00(土日祝除く)

STEP 1
お問い合わせ・ご相談
STEP 2
現地見学
STEP 3
ご契約・お手続き
STEP 4
引き渡し・運用サポート

近隣情報

郵便局
半蔵門駅前郵便局
東京都千代田区麹町2-12
銀行
三菱UFJ銀行 麹町支店
東京都千代田区麹町4-1

物件概要

基準階坪数
27.2坪
耐震
対応済み

※1981年6月1日以降に確認申請された建物は新耐震基準に該当しますが、当サイトでは原則として1982年6月1日以降に竣工した物件を新耐震として表記しています。

設備詳細

空調
個別空調
トイレ
男女別
エレベーター
1基

主な入居テナント

  • 株式会社リーガル・ステーション
  • 税理士法人メディカルビジネス 東京本社
  • 株式会社 プロリード 東京営業所
  • NAC社会保険労務士事務所
  • ファミリーマート 半蔵門駅南店
スタッフコメント
千代田区隼町に位置する「パレスサイド千代田」は、東京メトロ半蔵門線「半蔵門」駅徒歩1分、東京メトロ有楽町線「麹町」駅徒歩6分の立地です。皇居にもほど近い落ち着いた環境に所在し、周辺には官公庁やオフィスが集まるエリアが広がります。SRC造地上8階建てで、エレベーター1基を設置。個別空調、男女別トイレ、機械警備を備え、24時間使用可能です。前面にミラーガラスを採用した外観が特徴で、視認性にも配慮されたオフィスビルです。