VORT浜松町I

情報更新日:2026年05月15日
物件名
VORT浜松町I
所在地
東京都港区浜松町1-6-15
アクセス
都営大江戸線 大門駅 徒歩4分
山手線 浜松町駅 徒歩5分
都営三田線 御成門駅 徒歩8分
竣工年月
2008年08月
規模
地上10階

フォトギャラリー

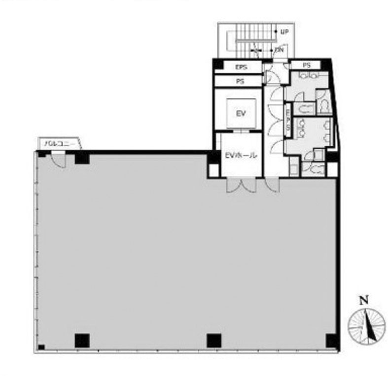
間取り 区画 面積 賃料
(管理費含)
保証金・敷金 入居日 用途仕様
5 66.43
要問合せ 5ヶ月 2026年10月01日 事務所
OAフロアー
3 66.43
要問合せ 要問合せ 要問合せ 事務所・店舗
OAフロアー

貸室面積合計 66.43

※複数の貸室合計も表示されます。

お電話でのお問い合わせ

03-6278-5609

平日9:00 ~ 18:00(土日祝除く)

STEP 1
お問い合わせ・ご相談
STEP 2
現地見学
STEP 3
ご契約・お手続き
STEP 4
引き渡し・運用サポート

近隣情報

郵便局
芝大門郵便局
東京都港区芝大門1-1-13
銀行
三井住友銀行 浜松町支店
東京都港区浜松町2-3-1 日本生命浜松町クレアタワー4階

物件概要

基準階坪数
66.43坪
耐震
対応済み

※1981年6月1日以降に確認申請された建物は新耐震基準に該当しますが、当サイトでは原則として1982年6月1日以降に竣工した物件を新耐震として表記しています。

設備詳細

空調
個別空調
トイレ
男女別
エレベーター
1基

主な入居テナント

  • ロクステック・ジャパン株式会社
  • 株式会社アムス
  • 株式会社ベストパーソン
  • 株式会社フューチャーインフィニティ 東京支店
  • ニチモウバイオティックス株式会社
スタッフコメント
港区浜松町1丁目に位置するVORT浜松町Iは、都営大江戸線「大門」駅徒歩4分のほか、JR山手線「浜松町」駅や「御成門」駅も徒歩圏内と、複数路線が利用可能な立地です。周辺はオフィスビルが立ち並ぶビジネスエリアに位置しています。スタイリッシュでモダンな外観が印象的な建物です。貸室は柱のない設計でレイアウト効率に優れ、トイレや給湯スペースを共用部に配置することで、執務スペースを有効に活用しやすい構成となっています。