アセンド神田ビル

情報更新日:2026年05月21日
物件名
アセンド神田ビル
所在地
東京都千代田区神田富山町10-2
アクセス
山手線 神田駅 徒歩4分
都営新宿線 岩本町駅 徒歩4分
総武本線 新日本橋駅 徒歩7分
竣工年月
1988年11月
規模
地上7階 / 地下1階

フォトギャラリー

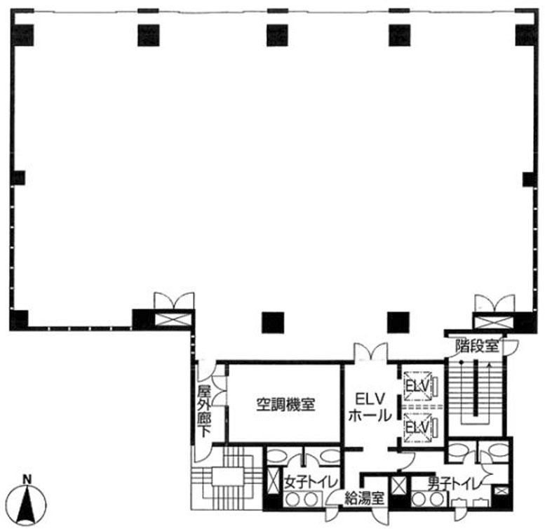
間取り 区画 面積 賃料
(管理費含)
保証金・敷金 入居日 用途仕様
5 143.08
要問合せ 12ヶ月 要問合せ 事務所
OAフロアー

貸室面積合計 143.08

※複数の貸室合計も表示されます。

お電話でのお問い合わせ

03-6278-5609

平日9:00 ~ 18:00(土日祝除く)

STEP 1
お問い合わせ・ご相談
STEP 2
現地見学
STEP 3
ご契約・お手続き
STEP 4
引き渡し・運用サポート

近隣情報

郵便局
千代田鍛冶町郵便局
東京都千代田区鍛冶町2-11-22
銀行
三菱UFJ銀行 神田駅前支店
東京都千代田区神田鍛冶町3-6-3

物件概要

基準階坪数
125坪
耐震
対応済み

※1981年6月1日以降に確認申請された建物は新耐震基準に該当しますが、当サイトでは原則として1982年6月1日以降に竣工した物件を新耐震として表記しています。

設備詳細

空調
セントラル空調
トイレ
男女別
エレベーター
2基

主な入居テナント

  • 森下仁丹株式会社 東京オフィス
  • 国際開発株式会社 東京支店
  • 株式会社サニカ 東京支店
  • 日興リカ株式会社
  • 株式会社JR東日本サービスクリエーション
スタッフコメント
千代田区神田富山町に位置する「アセンド神田ビル」は、オフィスビルが立ち並ぶエリアに建つ重厚感あるオフィスビルです。グレーのパネル張りの外観が落ち着いた印象を与え、リニューアルされた共用部やトイレも清潔感のある仕様となっています。大理石を用いたエントランスにはオブジェや絵画が配され、美術館のような品格ある空間が広がります。JR「神田」駅徒歩4分をはじめ複数路線が利用可能で、機能性と快適性を兼ね備えたオフィス環境となっています。