陽光銀座ビル

情報更新日:2026年04月13日
物件名
陽光銀座ビル
所在地
東京都中央区銀座4-8-14
アクセス
都営浅草線 東銀座駅 徒歩2分
銀座線 銀座駅 徒歩3分
竣工年月
1983年04月
規模
地上10階

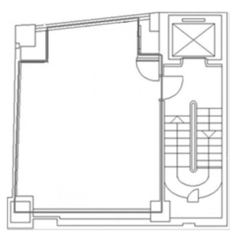
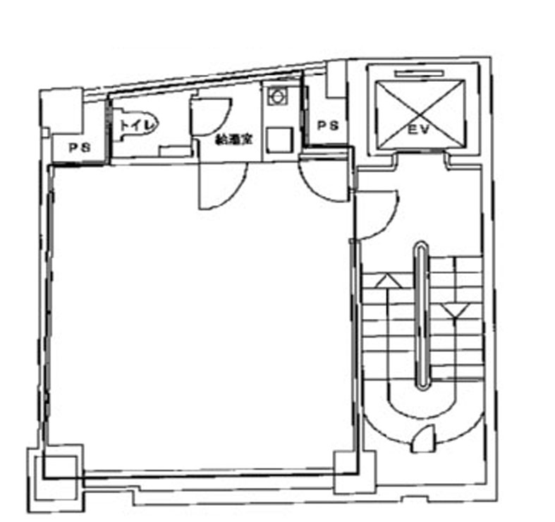
フォトギャラリー

間取り 区画 面積 賃料
(管理費含)
保証金・敷金 入居日 用途仕様
3 10.91
30,000円/坪
327,300円(税別)
10ヶ月 要問合せ 事務所
タイルカーペット
4 10.91
30,000円/坪
327,300円(税別)
10ヶ月 要問合せ 事務所
タイルカーペット

貸室面積合計 21.82

※複数の貸室合計も表示されます。

お電話でのお問い合わせ

03-6278-5609

平日9:00 ~ 18:00(土日祝除く)

STEP 1
お問い合わせ・ご相談
STEP 2
現地見学
STEP 3
ご契約・お手続き
STEP 4
引き渡し・運用サポート

近隣情報

郵便局
銀座四郵便局
東京都中央区銀座4-6-11
銀行
三井住友銀行 銀座支店
東京都中央区銀座6-10-1

物件概要

基準階坪数
10.91坪
耐震
対応済み

※1981年6月1日以降に確認申請された建物は新耐震基準に該当しますが、当サイトでは原則として1982年6月1日以降に竣工した物件を新耐震として表記しています。

設備詳細

空調
個別空調
トイレ
男女共同
エレベーター
1基

主な入居テナント

  • サロンドロワイヤル 銀座店
  • きもの白
  • 陽光銀座整骨院
  • BARBIERE GINZA
  • ginzaplus​