神田吉川ビル

情報更新日:2026年04月24日
物件名
神田吉川ビル
所在地
東京都千代田区神田多町2-4
アクセス
山手線 神田駅 徒歩3分
丸ノ内線 淡路町駅 徒歩5分
都営新宿線 小川町駅 徒歩7分
竣工年月
1988年11月
規模
地上5階

フォトギャラリー

間取り 区画 面積 賃料
(管理費含)
保証金・敷金 入居日 用途仕様
2 22.33
10,135円/坪
226,313円(税別)
5ヶ月 2026年06月 上旬 事務所・店舗
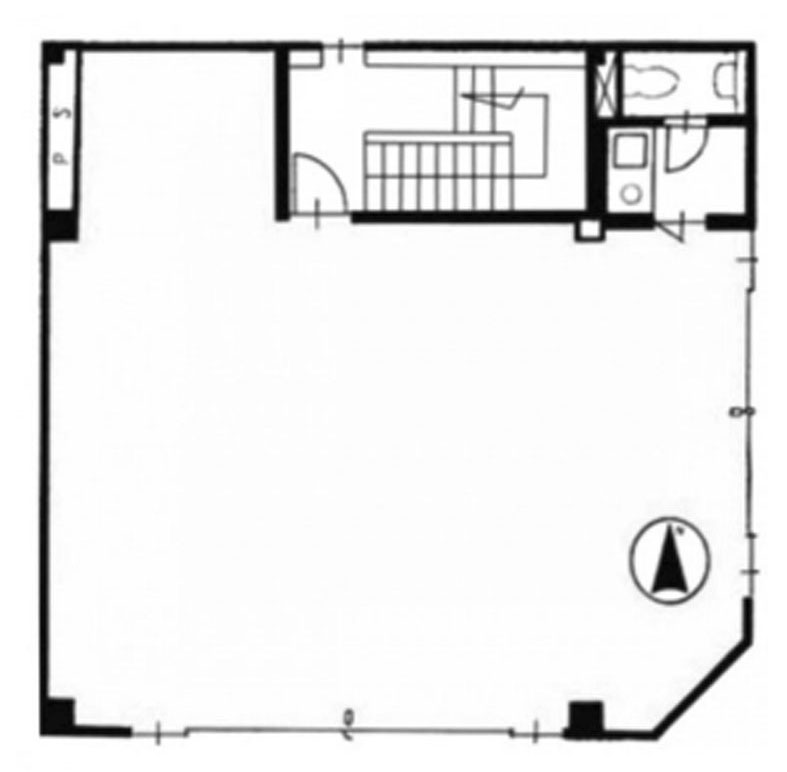
OAフロアー

貸室面積合計 22.33

※複数の貸室合計も表示されます。

お電話でのお問い合わせ

03-6278-5609

平日9:00 ~ 18:00(土日祝除く)

STEP 1
お問い合わせ・ご相談
STEP 2
現地見学
STEP 3
ご契約・お手続き
STEP 4
引き渡し・運用サポート

近隣情報

郵便局
神田駅前郵便局
東京都千代田区神田多町2-2-6
銀行
三菱UFJ銀行 神田駅前支店
東京都千代田区神田鍛冶町3-6-3

物件概要

基準階坪数
22.33坪
耐震
対応済み

※1981年6月1日以降に確認申請された建物は新耐震基準に該当しますが、当サイトでは原則として1982年6月1日以降に竣工した物件を新耐震として表記しています。

設備詳細

空調
個別空調
トイレ
男女共同
エレベーター
なし

主な入居テナント

  • 海王丸 神田店
スタッフコメント
千代田区神田多町2丁目に位置する「神田吉川ビル」は、神田駅至近の利便性に優れた立地が魅力の物件です。JR「神田」駅徒歩3分をはじめ、「淡路町」駅や「小川町」駅も徒歩圏内にあり、複数路線が利用可能で都内主要エリアへのアクセスも良好です。周辺はオフィスや飲食店が集まる利便性の高い環境で、ビジネス拠点として活用しやすいロケーションです。