芝田ビル

情報更新日:2026年04月16日
物件名
芝田ビル
所在地
東京都新宿区馬場下町62
アクセス
東西線 早稲田駅 徒歩2分
副都心線 西早稲田駅 徒歩14分
都営大江戸線 若松河田駅 徒歩14分
竣工年月
1988年05月
規模
地上7階 / 地下1階

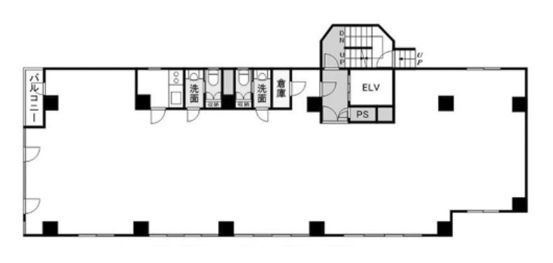
フォトギャラリー

間取り 区画 面積 賃料
(管理費含)
保証金・敷金 入居日 用途仕様
3 59.1
13,000円/坪
768,300円(税別)
6ヶ月 2026年06月01日 事務所・店舗
OAフロアー

貸室面積合計 59.1

※複数の貸室合計も表示されます。

お電話でのお問い合わせ

03-6278-5609

平日9:00 ~ 18:00(土日祝除く)

STEP 1
お問い合わせ・ご相談
STEP 2
現地見学
STEP 3
ご契約・お手続き
STEP 4
引き渡し・運用サポート

近隣情報

郵便局
新宿馬場下郵便局
東京都新宿区馬場下町61
銀行
三井住友銀行 高田馬場支店
東京都新宿区高田馬場1-27-7

物件概要

基準階坪数
59.1坪
耐震
対応済み

※1981年6月1日以降に確認申請された建物は新耐震基準に該当しますが、当サイトでは原則として1982年6月1日以降に竣工した物件を新耐震として表記しています。

設備詳細

空調
個別空調
トイレ
男女別
エレベーター
1基

主な入居テナント

  • 鈴木沙良夢法律事務所
  • 株式会社フレアシステム
  • OTO 早稲田スタジオ
  • トレファクスタイル 早稲田店
  • Cafe Renoir 早稲田駅前店
スタッフコメント
新宿区馬場下町に位置する「芝田ビル」は、早稲田通り沿いに建つ利便性の高いオフィスビルです。東京メトロ東西線「早稲田」駅徒歩2分とアクセスに優れ、周辺にはメガバンクや郵便局など生活利便施設も充実しています。駅近ならではの人通りと活気のあるエリアに位置し、利便性と機動力を兼ね備えたロケーションが魅力です。