MUTOH浜町ビル

情報更新日:2026年05月19日
物件名
MUTOH浜町ビル
所在地
東京都中央区日本橋浜町2-13-6
アクセス
都営新宿線 浜町駅 徒歩2分
日比谷線 人形町駅 徒歩6分
都営浅草線 人形町駅 徒歩6分
竣工年月
1988年07月
規模
地上8階 / 地下1階

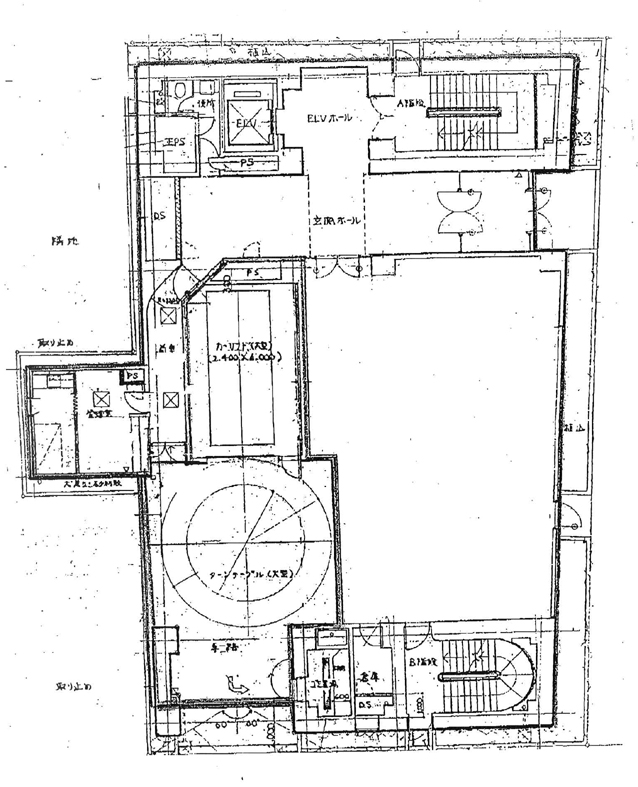
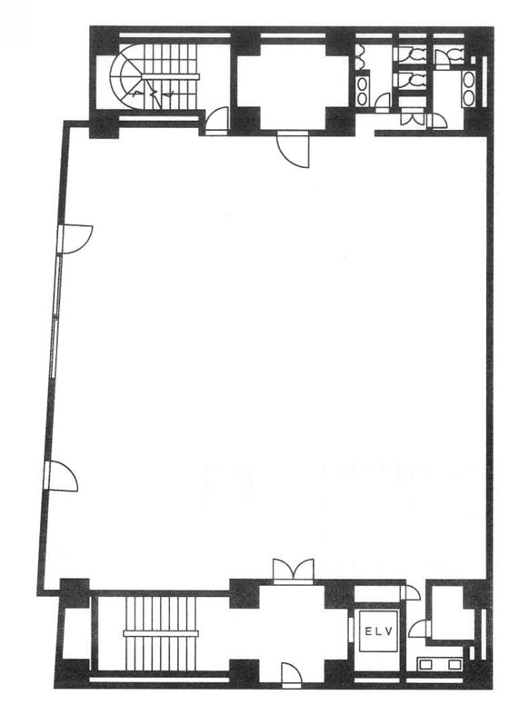
フォトギャラリー

間取り 区画 面積 賃料
(管理費含)
保証金・敷金 入居日 用途仕様
8 99.85
要問合せ 12ヶ月 即入居可能 事務所
OAフロアー
1 44.06
要問合せ 要問合せ 要問合せ 事務所・店舗
OAフロアー
2 80.21
要問合せ 要問合せ 要問合せ 事務所
OAフロアー
3 106
要問合せ 要問合せ 要問合せ 事務所
OAフロアー
4 102.7
要問合せ 要問合せ 要問合せ 事務所
OAフロアー
5 102.7
要問合せ 要問合せ 要問合せ 事務所
OAフロアー
6 106
要問合せ 要問合せ 要問合せ 事務所
OAフロアー
7 102.7
要問合せ 要問合せ 要問合せ 事務所
OAフロアー

貸室面積合計 99.85

※複数の貸室合計も表示されます。

お電話でのお問い合わせ

03-6278-5609

平日9:00 ~ 18:00(土日祝除く)

STEP 1
お問い合わせ・ご相談
STEP 2
現地見学
STEP 3
ご契約・お手続き
STEP 4
引き渡し・運用サポート

近隣情報

郵便局
中央浜町一郵便局
東京都中央区日本橋浜町1-5-1
銀行
みずほ銀行 小舟町支店
東京都中央区日本橋小舟町8-1

物件概要

基準階坪数
102.7坪
耐震
対応済み

※1981年6月1日以降に確認申請された建物は新耐震基準に該当しますが、当サイトでは原則として1982年6月1日以降に竣工した物件を新耐震として表記しています。

設備詳細

空調
セントラル空調
トイレ
男女別
エレベーター
1基

主な入居テナント

  • 東京シティ信用金庫 日本橋支店
  • ダイナパック株式会社 東京営業所
  • 株式会社ヨシザワ建築構造設計 本社
  • キクロン株式会社 東京オフィス
  • 公益社団法人日本ファシリティマネジメント協会
スタッフコメント
中央区日本橋浜町2丁目の「MUTOH浜町ビル」は、都営新宿線「浜町」駅徒歩2分、日比谷線・都営浅草線「人形町」駅も徒歩圏内で、複数路線が利用可能です。明治座が斜め向かいに位置し、清洲橋通り沿いの角地のため、視認性の高さを確保しています。周辺はオフィスビルとマンションが混在するエリア。飲食店やコンビニが徒歩圏内に揃い、浜町公園にも近い立地にあります。地下1階地上8階建てのSRC造で、セントラル空調、男女別トイレ、エレベーター、機械警備を備え、ワンフロア・ワンテナント仕様で24時間使用可能なオフィスビルです。