横川ビル

情報更新日:2026年05月14日
物件名
横川ビル
所在地
東京都中央区新川1-17-27
アクセス
東西線 茅場町駅 徒歩3分
半蔵門線 水天宮前駅 徒歩7分
竣工年月
1986年07月
規模
地上11階

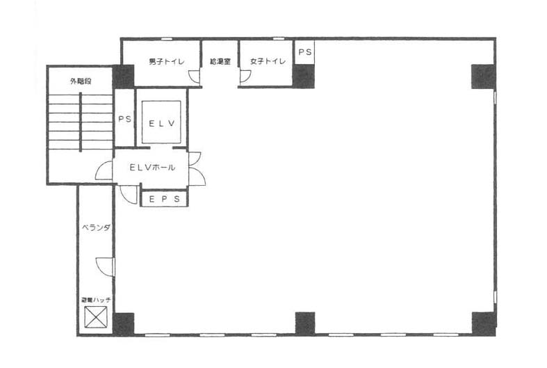
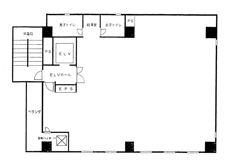
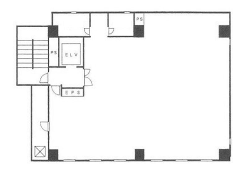
フォトギャラリー

間取り 区画 面積 賃料
(管理費含)
保証金・敷金 入居日 用途仕様
2 36.21
18,182円/坪
658,370円(税別)
10ヶ月 即入居可能 事務所
OAフロアー
1 31.1
要問合せ 要問合せ 要問合せ 事務所
OAフロアー
3 39.57
要問合せ 要問合せ 要問合せ 事務所
OAフロアー
3 39.57
要問合せ 要問合せ 要問合せ 事務所
タイルカーペット
4 40
要問合せ 要問合せ 要問合せ 事務所
タイルカーペット
5 40
要問合せ 要問合せ 要問合せ 事務所
OAフロアー
6 40
要問合せ 要問合せ 要問合せ 事務所
OAフロアー
7 40
要問合せ 要問合せ 要問合せ 事務所
タイルカーペット
8 40
要問合せ 要問合せ 要問合せ 事務所
タイルカーペット
9 38.31
要問合せ 要問合せ 要問合せ 事務所・店舗
OAフロアー

貸室面積合計 36.21

※複数の貸室合計も表示されます。

お電話でのお問い合わせ

03-6278-5609

平日9:00 ~ 18:00(土日祝除く)

STEP 1
お問い合わせ・ご相談
STEP 2
現地見学
STEP 3
ご契約・お手続き
STEP 4
引き渡し・運用サポート

近隣情報

郵便局
中央新川郵便局
東京都中央区新川1-9-11
銀行
みずほ銀行 兜町支店
東京都中央区日本橋兜町4-3

物件概要

基準階坪数
40坪
耐震
対応済み

※1981年6月1日以降に確認申請された建物は新耐震基準に該当しますが、当サイトでは原則として1982年6月1日以降に竣工した物件を新耐震として表記しています。

設備詳細

空調
個別空調
トイレ
男女別
エレベーター
1基

主な入居テナント

  • 天満紙器株式会社 東京営業部
  • 株式会社セントラルアセット
  • 株式会社インフォース
  • 一般社団法人 日本創生推進機構
  • 一般社団法人 なかま
スタッフコメント
中央区新川1丁目に建つ「横川ビル」は、東西線「茅場町」駅徒歩3分のほか、半蔵門線「水天宮前」駅も徒歩圏内とアクセス良好な立地です。永代通り沿いにあり、周辺は飲食店やコンビニが揃う実用的な環境が整っています。個別空調、男女別トイレ、エレベーターを備え、機械警備による安心の管理体制を採用。24時間使用可能な柔軟性を備えたオフィスビルです。