パシフィックマークス月島

情報更新日:2026年05月19日
物件名
パシフィックマークス月島
所在地
東京都中央区月島1-15-7
アクセス
有楽町線 月島駅 徒歩4分
都営大江戸線 月島駅 徒歩4分
竣工年月
1990年03月
規模
地上12階 / 地下2階

フォトギャラリー

間取り 区画 面積 賃料
(管理費含)
保証金・敷金 入居日 用途仕様
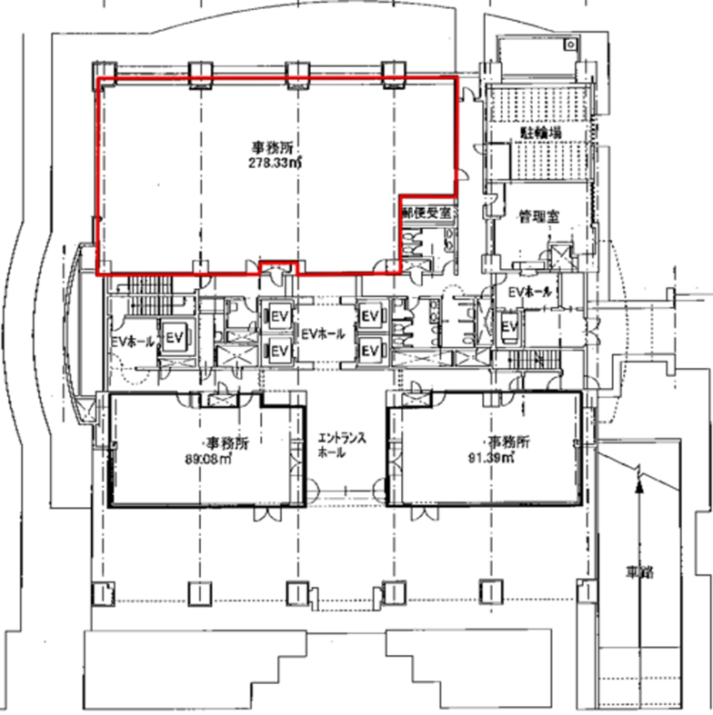
4 272.42
要問合せ 12ヶ月 即入居可能 事務所
OAフロアー
5 272.42
要問合せ 12ヶ月 即入居可能 事務所
OAフロアー
1 138.77
要問合せ 要問合せ 要問合せ 事務所・店舗
OAフロアー
1 84.19
要問合せ 要問合せ 要問合せ 事務所・店舗
OAフロアー
2 248.77
要問合せ 要問合せ 要問合せ 事務所
OAフロアー
3 272.34
要問合せ 要問合せ 要問合せ 事務所
OAフロアー
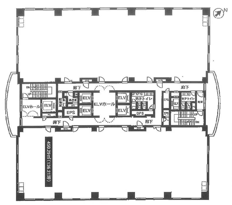
4 136.21
要問合せ 要問合せ 要問合せ 事務所
OAフロアー
6 272.42
要問合せ 要問合せ 要問合せ 事務所
OAフロアー
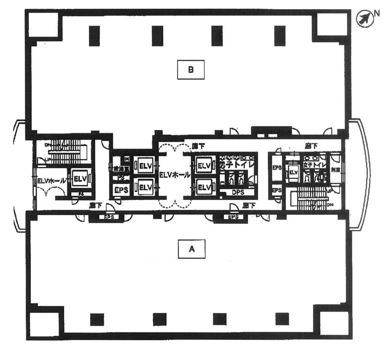
7 136.21
要問合せ 要問合せ 要問合せ 事務所
OAフロアー
7B 136.21
要問合せ 要問合せ 要問合せ 事務所
OAフロアー
8 262.56
要問合せ 要問合せ 要問合せ 事務所
OAフロアー

貸室面積合計 544.84

※複数の貸室合計も表示されます。

お電話でのお問い合わせ

03-6278-5609

平日9:00 ~ 18:00(土日祝除く)

STEP 1
お問い合わせ・ご相談
STEP 2
現地見学
STEP 3
ご契約・お手続き
STEP 4
引き渡し・運用サポート

近隣情報

郵便局
京橋月島郵便局
東京都中央区月島4-1-14
銀行
三菱UFJ銀行 月島支店
東京都中央区勝どき2-9-15

物件概要

基準階坪数
272.42坪
耐震
対応済み

※1981年6月1日以降に確認申請された建物は新耐震基準に該当しますが、当サイトでは原則として1982年6月1日以降に竣工した物件を新耐震として表記しています。

設備詳細

空調
個別空調
トイレ
男女別
エレベーター
5基

主な入居テナント

  • 株式会社NTTデータ先端技術 月島オフィス
  • 株式会社プレミアアシスト 事業統括本部
  • プレミアペットクリニック
スタッフコメント
中央区月島1丁目の「パシフィックマークス月島」は、有楽町線・都営大江戸線「月島」駅が徒歩4分とアクセスに優れています。館内には個別空調、男女別トイレ、エレベーター5基、機械警備を備え、24時間使用可能。ビルの裏手には隅田川が流れ、周辺は比較的落ち着いた環境です。徒歩圏内には飲食店も点在しています。周辺環境と設備面を踏まえ、安定したオフィス利用に対応しやすい環境が整っています。