ザ・パークレックス新川

情報更新日:2026年05月15日
物件名
ザ・パークレックス新川
所在地
東京都中央区新川2-28-1
アクセス
京葉線 八丁堀駅 徒歩5分
東西線 茅場町駅 徒歩8分
竣工年月
1993年01月
規模
地上7階 / 地下1階

フォトギャラリー

間取り 区画 面積 賃料
(管理費含)
保証金・敷金 入居日 用途仕様
3 56.73
要問合せ 8ヶ月 2026年10月01日 事務所
OAフロアー
6 58.68
要問合せ 8ヶ月 即入居可能 事務所
OAフロアー
2 62.13
要問合せ 要問合せ 要問合せ 事務所
OAフロアー
3 62.13
要問合せ 要問合せ 要問合せ 事務所
OAフロアー
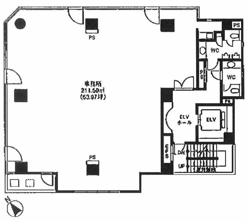
5 63.97
要問合せ 要問合せ 要問合せ 事務所
OAフロアー
701 58.68
要問合せ 要問合せ 要問合せ 事務所
OAフロアー

貸室面積合計 115.41

※複数の貸室合計も表示されます。

お電話でのお問い合わせ

03-6278-5609

平日9:00 ~ 18:00(土日祝除く)

STEP 1
お問い合わせ・ご相談
STEP 2
現地見学
STEP 3
ご契約・お手続き
STEP 4
引き渡し・運用サポート

近隣情報

郵便局
中央新川二郵便局
東京都中央区新川2-15-11
銀行
三菱UFJ銀行 新富町支店
東京都中央区新富1-18-1

物件概要

基準階坪数
62.13坪
耐震
対応済み

※1981年6月1日以降に確認申請された建物は新耐震基準に該当しますが、当サイトでは原則として1982年6月1日以降に竣工した物件を新耐震として表記しています。

設備詳細

空調
個別空調
トイレ
男女別
エレベーター
1基

主な入居テナント

  • 銀行等保有株式取得機構
  • 株式会社エスペランサデザインオフィス
  • 株式会社大洋 東京本店
  • 株式会社メリテック
  • ファミリーマート 新川中央大橋店
スタッフコメント
中央区新川2丁目に位置する「ザ・パークレックス新川」は、京葉線「八丁堀」駅徒歩5分に加え、東西線「茅場町」駅も徒歩圏内と、複数路線が利用可能です。八重洲通りに面した地下1階地上7階建ての建物で、個別空調、男女別トイレ、機械警備およびエレベーター不停止機能を備え、24時間使用可能。1階にはファミリーマートが入居しており、日常利用に便利な環境です。