第2スヂノビル

情報更新日:2026年02月10日
物件名
第2スヂノビル
所在地
東京都千代田区神田佐久間町3-21-48
アクセス
山手線 秋葉原駅 徒歩2分
日比谷線 秋葉原駅 徒歩2分
都営新宿線 岩本町駅 徒歩5分
竣工年月
1982年03月
規模
地上6階

フォトギャラリー

間取り 区画 面積 賃料
(管理費含)
保証金・敷金 入居日 用途仕様
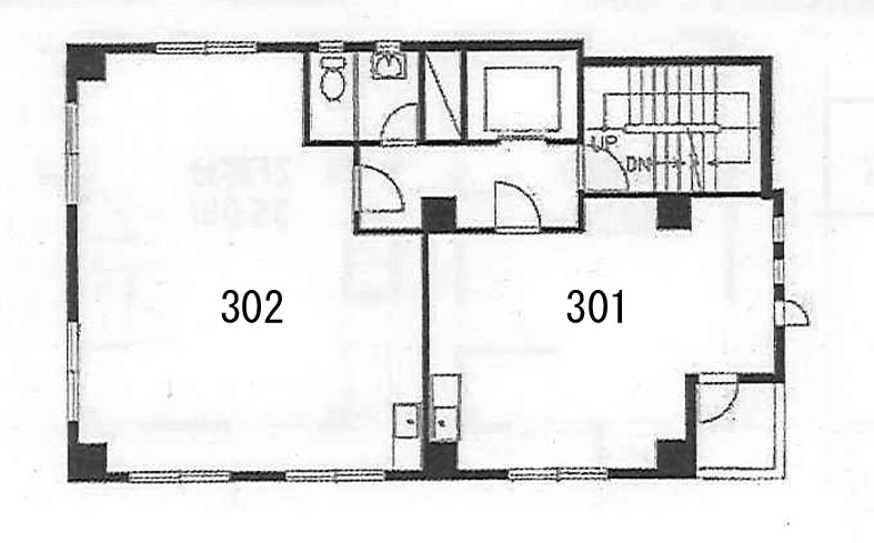
301 12
15,000円/坪
180,000円(税別)
10ヶ月 即入居可能 事務所・店舗
タイルカーペット
302 14
15,000円/坪
210,000円(税別)
10ヶ月 即入居可能 事務所・店舗
タイルカーペット
1 24.5
要問合せ 要問合せ 要問合せ 事務所
タイルカーペット
201 26
要問合せ 要問合せ 要問合せ 事務所・店舗
タイルカーペット
401 12
要問合せ 要問合せ 要問合せ 事務所
タイルカーペット
401 12
要問合せ 要問合せ 要問合せ 事務所・店舗
タイルカーペット
402 14
要問合せ 要問合せ 要問合せ 事務所
タイルカーペット
501 12
要問合せ 要問合せ 要問合せ 事務所
タイルカーペット
502 14
要問合せ 要問合せ 要問合せ 事務所・店舗
タイルカーペット
601 12
要問合せ 要問合せ 要問合せ 事務所
タイルカーペット
602 14
要問合せ 要問合せ 要問合せ 事務所
タイルカーペット

貸室面積合計 26

※複数の貸室合計も表示されます。

お電話でのお問い合わせ

03-6278-5609

平日9:00 ~ 18:00(土日祝除く)

STEP 1
お問い合わせ・ご相談
STEP 2
現地見学
STEP 3
ご契約・お手続き
STEP 4
引き渡し・運用サポート

近隣情報

郵便局
東神田郵便局
東京都千代田区東神田2-4-5
銀行
三菱UFJ銀行 神田駅前支店
東京都千代田区神田鍛冶町3-6-3

物件概要

基準階坪数
26坪
耐震
対応済み

※1981年6月1日以降に確認申請された建物は新耐震基準に該当しますが、当サイトでは原則として1982年6月1日以降に竣工した物件を新耐震として表記しています。

設備詳細

空調
個別空調
トイレ
男女共同
エレベーター
1基

主な入居テナント

  • 株式会社スマイリーマム
  • 自炊の森
スタッフコメント
秋葉原駅や岩本町駅が徒歩圏内にあり、ビジネスエリアと住宅街が交わる利便性の高い立地です。周辺には飲食店やコンビニ、郵便局などが揃い、日常的にも使い勝手の良い環境が整っています。建物は個別空調を備え、快適な室内環境を維持しやすい仕様となっています。小規模ながらも実用性に優れたつくりで、多様な用途に対応しやすい一棟です。