芝ロイヤービル

情報更新日:2026年04月20日
物件名
芝ロイヤービル
所在地
東京都港区芝公園2-9-3
アクセス
都営三田線 芝公園駅 徒歩3分
都営浅草線 大門駅 徒歩5分
山手線 浜松町駅 徒歩6分
竣工年月
1979年12月
規模
地上8階

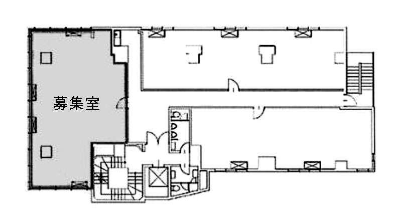
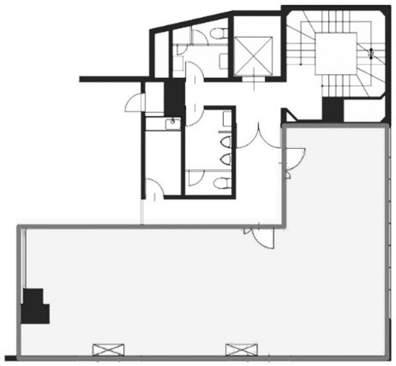
フォトギャラリー

間取り 区画 面積 賃料
(管理費含)
保証金・敷金 入居日 用途仕様
701 27.24
15,000円/坪
408,600円(税別)
6ヶ月 2026年10月 上旬 事務所
OAフロアー
8 64.14
15,000円/坪
962,100円(税別)
6ヶ月 即入居可能 事務所
OAフロアー
5 85.5
要問合せ 要問合せ 要問合せ 事務所
タイルカーペット
502 27.67
要問合せ 要問合せ 要問合せ 事務所
タイルカーペット
5A 26.49
要問合せ 要問合せ 要問合せ 事務所
タイルカーペット
5B 24.1
要問合せ 要問合せ 要問合せ 事務所
タイルカーペット
5C 24.1
要問合せ 要問合せ 要問合せ 事務所
タイルカーペット
6 35.33
要問合せ 要問合せ 要問合せ 事務所
タイルカーペット
7 66.4
要問合せ 要問合せ 要問合せ 事務所
タイルカーペット
7 49.7
要問合せ 要問合せ 要問合せ 事務所
タイルカーペット
702 14.74
要問合せ 要問合せ 要問合せ 事務所
タイルカーペット
703 29.9
要問合せ 要問合せ 要問合せ 事務所
タイルカーペット
8 68.47
要問合せ 要問合せ 要問合せ 事務所
タイルカーペット

貸室面積合計 91.38

※複数の貸室合計も表示されます。

お電話でのお問い合わせ

03-6278-5609

平日9:00 ~ 18:00(土日祝除く)

STEP 1
お問い合わせ・ご相談
STEP 2
現地見学
STEP 3
ご契約・お手続き
STEP 4
引き渡し・運用サポート

近隣情報

郵便局
港浜松町郵便局
東京都港区芝大門2-4-18
銀行
みずほ銀行 浜松町支店
東京都港区浜松町2-4-1

物件概要

耐震
未対応

※1981年6月1日以降に確認申請された建物は新耐震基準に該当しますが、当サイトでは原則として1982年6月1日以降に竣工した物件を新耐震として表記しています。

設備詳細

空調
個別空調
トイレ
男女別
エレベーター
1基

主な入居テナント

  • 株式会社 龍森
  • ポニー工業株式会社
  • 株式会社システムサポート22
スタッフコメント
芝公園駅から徒歩3分と、駅からのアクセスを確保しやすい立地です。大門駅や浜松町駅も徒歩圏内にあり、行き先に応じた移動手段を選択しやすい位置関係といえます。地上8階建てのオフィスビルで、業務利用を前提とした扱いやすい規模感です。個別空調を採用しており、利用時間帯や業務内容に応じた調整がしやすい構成となっています。複数駅へのアクセスを前提に、都心部での業務利用を想定した検討を進めやすい物件です。