荒木ビル

情報更新日:2026年03月17日
物件名
荒木ビル
所在地
東京都千代田区神田司町2-6-1
アクセス
丸ノ内線 淡路町駅 徒歩2分
都営新宿線 小川町駅 徒歩3分
山手線 神田駅 徒歩6分
中央線 御茶ノ水駅 徒歩10分
竣工年月
1971年06月
規模
地上8階

フォトギャラリー

間取り 区画 面積 賃料
(管理費含)
保証金・敷金 入居日 用途仕様
5 43.5
12,000円/坪
522,000円(税別)
8ヶ月 即入居可能 事務所
タイルカーペット
1 35
要問合せ 要問合せ 要問合せ 事務所
タイルカーペット
2 43.5
要問合せ 要問合せ 要問合せ 事務所
タイルカーペット
4 43.5
要問合せ 要問合せ 要問合せ 事務所
タイルカーペット
6 43.5
要問合せ 要問合せ 要問合せ 事務所
タイルカーペット
7 43.5
要問合せ 要問合せ 要問合せ 事務所
タイルカーペット
8 30.03
要問合せ 要問合せ 要問合せ 事務所
タイルカーペット

貸室面積合計 43.5

※複数の貸室合計も表示されます。

お電話でのお問い合わせ

03-6278-5609

平日9:00 ~ 18:00(土日祝除く)

STEP 1
お問い合わせ・ご相談
STEP 2
現地見学
STEP 3
ご契約・お手続き
STEP 4
引き渡し・運用サポート

近隣情報

郵便局
小川町駅前郵便局
東京都千代田区神田小川町1-3-1
銀行
みずほ銀行 神田支店
東京都千代田区神田小川町1-1

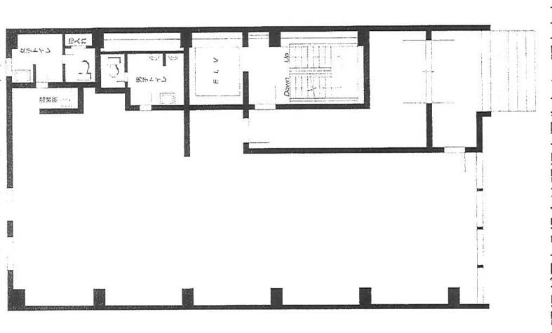
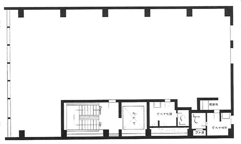
物件概要

基準階坪数
43.5坪
耐震
未対応

※1981年6月1日以降に確認申請された建物は新耐震基準に該当しますが、当サイトでは原則として1982年6月1日以降に竣工した物件を新耐震として表記しています。

設備詳細

空調
個別空調
トイレ
男女別
エレベーター
1基

主な入居テナント

  • 現在テナント情報はありません
スタッフコメント
東京メトロ丸ノ内線・淡路町駅から徒歩2分、都営新宿線の小川町駅も徒歩圏内で、神田エリアを中心に複数路線を使い分けやすい立地です。周辺にはオフィスや商業施設が集まっています。個別空調を備え、日々の業務に合わせた室内調整が可能で、男女別トイレなども設置し、基本設備も押さえられています。交通利便性と落ち着いた周辺環境のバランスが取れた、扱いやすいオフィスといえます。