| 間取り | 区画 | 面積 | 賃料 (管理費含) |
保証金・敷金 | 入居日 | 用途仕様 |
|---|---|---|---|---|---|---|
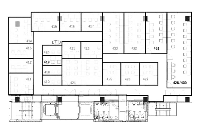
| 708 |
16.37坪 |
91,631円/坪 1,499,999円(税別) |
1ヶ月 | 即入居可能 |
その他 OAフロアー |
|
| 2 |
140.76坪 |
要問合せ | 要問合せ | 要問合せ |
事務所 OAフロアー |
|
| 4 |
70.66坪 |
要問合せ | 要問合せ | 要問合せ |
事務所 OAフロアー |
|
| 4 |
70.1坪 |
要問合せ | 要問合せ | 要問合せ |
事務所 OAフロアー |
|
| 4 |
140.76坪 |
要問合せ | 要問合せ | 要問合せ |
事務所 OAフロアー |
|
| 428+430 |
14.88坪 |
要問合せ | 要問合せ | 要問合せ |
その他 OAフロアー |
|
| 428+430+43 |
29.04坪 |
要問合せ | 要問合せ | 要問合せ |
その他 OAフロアー |
|
| 428+430+43 |
21.96坪 |
要問合せ | 要問合せ | 要問合せ |
その他 OAフロアー |
|
| 431+432 |
14.16坪 |
要問合せ | 要問合せ | 要問合せ |
その他 OAフロアー |
|
| 5 |
140.76坪 |
要問合せ | 要問合せ | 要問合せ |
事務所 OAフロアー |
|
| 6 |
140.76坪 |
要問合せ | 要問合せ | 要問合せ |
事務所 OAフロアー |
|
| 620 |
14.37坪 |
要問合せ | 要問合せ | 要問合せ |
その他 OAフロアー |
|
| 7 |
140.76坪 |
要問合せ | 要問合せ | 要問合せ |
事務所 OAフロアー |
|
| 702 |
19.63坪 |
要問合せ | 要問合せ | 要問合せ |
その他 OAフロアー |
|
| 702~703 |
34.82坪 |
要問合せ | 要問合せ | 要問合せ |
その他 OAフロアー |
|
| 703 |
15.19坪 |
要問合せ | 要問合せ | 要問合せ |
その他 OAフロアー |
|
| 8 |
140.76坪 |
要問合せ | 要問合せ | 要問合せ |
事務所 OAフロアー |
|
| 9 |
140.76坪 |
要問合せ | 要問合せ | 要問合せ |
事務所 OAフロアー |
|
| 10 |
140.76坪 |
要問合せ | 要問合せ | 要問合せ |
事務所 OAフロアー |
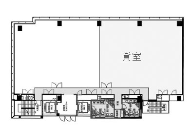
貸室面積合計 16.37坪
※複数の貸室合計も表示されます。
お電話でのお問い合わせ
03-6278-5609
平日9:00 ~ 18:00(土日祝除く)
STEP 1
お問い合わせ・ご相談
STEP 2
現地見学
STEP 3
ご契約・お手続き
STEP 4
引き渡し・運用サポート
近隣情報
- 郵便局
-
新宿二郵便局
東京都新宿区新宿2-11-2
- 銀行
-
三菱UFJ銀行 新宿支店
東京都新宿区新宿3-30-18
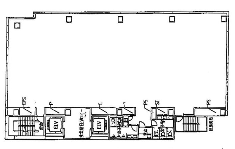
物件概要
- 基準階坪数
- 140.76坪
- 耐震
- 対応済み
※1981年6月1日以降に確認申請された建物は新耐震基準に該当しますが、当サイトでは原則として1982年6月1日以降に竣工した物件を新耐震として表記しています。
設備詳細
- 空調
- 個別空調
- トイレ
- 男女別
- エレベーター
- 2基
主な入居テナント
- 株式会社アイ・ディー・エス
- ロータスビジネスコンサルティング株式会社
- 株式会社ロビー
- 株式会社マナリンク
スタッフコメント