九段KAビル

情報更新日:2026年04月13日
物件名
九段KAビル
所在地
東京都千代田区九段北1-9-16
アクセス
東西線 九段下駅 徒歩3分
総武線 水道橋駅 徒歩8分
半蔵門線 神保町駅 徒歩8分
東西線 飯田橋駅 徒歩9分
竣工年月
1990年11月
規模
地上8階

フォトギャラリー

間取り 区画 面積 賃料
(管理費含)
保証金・敷金 入居日 用途仕様
8 24.68
14,992円/坪
370,003円(税別)
6ヶ月 要問合せ 事務所
Pタイル
1 25.8
要問合せ 要問合せ 要問合せ 事務所
Pタイル
2 36.95
要問合せ 要問合せ 要問合せ 事務所
タイルカーペット
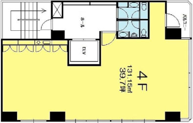
4 39.7
要問合せ 要問合せ 要問合せ 事務所
Pタイル
5 41.74
要問合せ 要問合せ 要問合せ 事務所
Pタイル
6 38.33
要問合せ 要問合せ 要問合せ 事務所
Pタイル

貸室面積合計 24.68

※複数の貸室合計も表示されます。

お電話でのお問い合わせ

03-6278-5609

平日9:00 ~ 18:00(土日祝除く)

STEP 1
お問い合わせ・ご相談
STEP 2
現地見学
STEP 3
ご契約・お手続き
STEP 4
引き渡し・運用サポート

近隣情報

郵便局
麹町飯田橋通郵便局
東京都千代田区飯田橋2-7-6
銀行
みずほ銀行 九段支店
東京都千代田区神田神保町2-4

物件概要

耐震
対応済み

※1981年6月1日以降に確認申請された建物は新耐震基準に該当しますが、当サイトでは原則として1982年6月1日以降に竣工した物件を新耐震として表記しています。

設備詳細

空調
個別空調
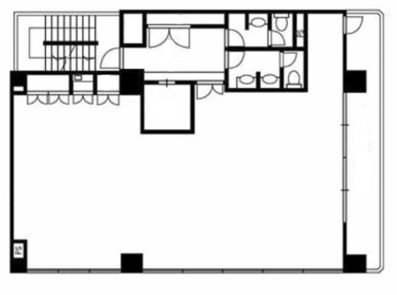
トイレ
男女別
エレベーター
1基

主な入居テナント

  • 現在テナント情報はありません
スタッフコメント
九段下駅から徒歩3分に位置し、水道橋駅や神保町駅も徒歩圏内で利用できます。個別空調、男女別トイレが備わり、日常利用の面でも扱いやすい構成です。周辺には緑地や公共施設も点在し、都心にありながら比較的穏やかな環境が保たれています。立地と環境のバランスが取れたオフィスビルです。