麹町秀永ビル

情報更新日:2026年05月27日
物件名
麹町秀永ビル
所在地
東京都千代田区九段南4-3-13
アクセス
都営新宿線 市ヶ谷駅 徒歩2分
総武線 市ケ谷駅 徒歩5分
半蔵門線 半蔵門駅 徒歩9分
竣工年月
1993年02月
規模
地上6階 / 地下1階

フォトギャラリー

間取り 区画 面積 賃料
(管理費含)
保証金・敷金 入居日 用途仕様
2 63.03
18,000円/坪
1,134,540円(税別)
10ヶ月 即入居可能 事務所
OAフロアー
4 63.03
要問合せ 要問合せ 要問合せ 事務所
OAフロアー
5 42.17
要問合せ 要問合せ 要問合せ 事務所
OAフロアー
6 25.97
要問合せ 要問合せ 要問合せ 事務所
OAフロアー

貸室面積合計 63.03

※複数の貸室合計も表示されます。

お電話でのお問い合わせ

03-6278-5609

平日9:00 ~ 18:00(土日祝除く)

STEP 1
お問い合わせ・ご相談
STEP 2
現地見学
STEP 3
ご契約・お手続き
STEP 4
引き渡し・運用サポート

近隣情報

郵便局
麹町郵便局
東京都千代田区九段南4-5-9
銀行
みずほ銀行 九段支店
東京都千代田区神田神保町2-4

物件概要

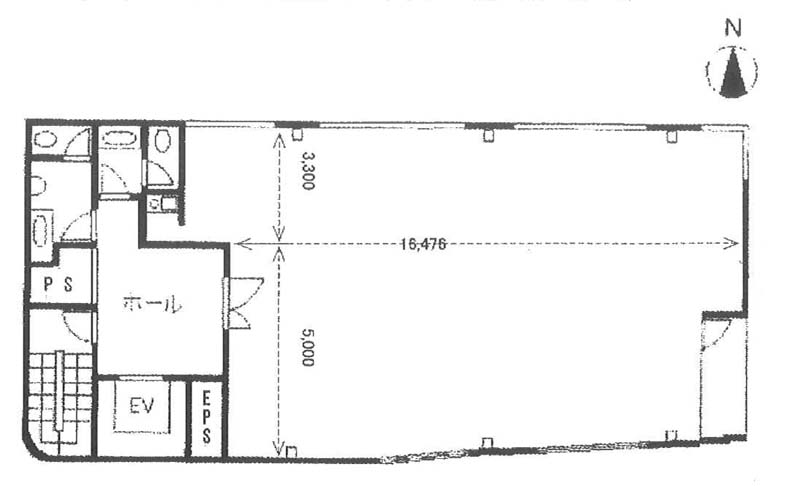
基準階坪数
63.03坪
耐震
対応済み

※1981年6月1日以降に確認申請された建物は新耐震基準に該当しますが、当サイトでは原則として1982年6月1日以降に竣工した物件を新耐震として表記しています。

設備詳細

空調
個別空調
トイレ
男女別
エレベーター
1基

主な入居テナント

  • 株式会社ムーランド
  • 公認会計士企業年金基金
スタッフコメント
東京都千代田区九段南4丁目の「麹町秀永ビル」は、落ち着いた石張りとガラス面を組み合わせた端正な外観が印象的なオフィスビルです。すっきりとしたファサードは周辺の街並みに調和し、エントランスも品のある佇まい。都営新宿線「市ヶ谷」駅徒歩2分をはじめ複数路線が利用可能な立地です。個別空調、OAフロア、男女別トイレに加え、機械警備とエレベーター不停止機能を備え、セキュリティ面にも配慮されたオフィス環境です。