No.1ニイクラビル

情報更新日:2026年05月15日
物件名
No.1ニイクラビル
所在地
東京都港区赤坂1-7-4
アクセス
銀座線 溜池山王駅 徒歩1分
竣工年月
2008年02月
規模
地上8階 / 地下1階

フォトギャラリー

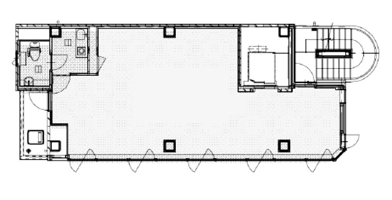
間取り 区画 面積 賃料
(管理費含)
保証金・敷金 入居日 用途仕様
1 12.41
要問合せ 12ヶ月 即入居可能 事務所・店舗
OAフロアー
B1~1 30.47
要問合せ 要問合せ 要問合せ 店舗
タイルカーペット
2 17.85
要問合せ 要問合せ 要問合せ 事務所
OAフロアー
3 17.85
要問合せ 要問合せ 要問合せ 店舗
OAフロアー
4 17.85
要問合せ 要問合せ 要問合せ 事務所
OAフロアー
5 17.85
要問合せ 要問合せ 要問合せ 事務所
OAフロアー
6 17.85
要問合せ 要問合せ 要問合せ 店舗
OAフロアー
7 17.85
要問合せ 要問合せ 要問合せ 事務所
OAフロアー
8 17.85
要問合せ 要問合せ 要問合せ 事務所
OAフロアー

貸室面積合計 12.41

※複数の貸室合計も表示されます。

お電話でのお問い合わせ

03-6278-5609

平日9:00 ~ 18:00(土日祝除く)

STEP 1
お問い合わせ・ご相談
STEP 2
現地見学
STEP 3
ご契約・お手続き
STEP 4
引き渡し・運用サポート

近隣情報

郵便局
アーク森ビル内郵便局
東京都港区赤坂1-12-32
銀行
三井住友銀行 赤坂支店
東京都港区赤坂2-5-1

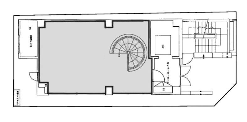
物件概要

基準階坪数
17.85坪
耐震
対応済み

※1981年6月1日以降に確認申請された建物は新耐震基準に該当しますが、当サイトでは原則として1982年6月1日以降に竣工した物件を新耐震として表記しています。

設備詳細

空調
個別空調
トイレ
男女共同
エレベーター
1基

主な入居テナント

  • TORA Asset Investment 株式会社
  • ノバレンズ株式会社
スタッフコメント
港区赤坂1丁目に位置する「No.1ニイクラビル」は、東京メトロ銀座線・南北線「溜池山王」駅至近に立地し、都心主要エリアへのアクセスに優れた環境です。六本木通りから一本入った落ち着いた通りに位置し、駅近でありながら過度な喧騒を避けた立地条件が保たれています。地下1階地上8階建てのS造で、個別空調、エレベーター1基、有人警備およびEV不停止機能を備え、24時間使用可能。コンパクトな規模感を活かし、立地重視での業務利用を検討しやすい物件といえます。