マツモトビル

情報更新日:2026年04月28日
物件名
マツモトビル
所在地
東京都中央区日本橋大伝馬町14-15
アクセス
総武本線 馬喰町駅 徒歩2分
日比谷線 小伝馬町駅 徒歩3分
都営新宿線 馬喰横山駅 徒歩3分
都営浅草線 東日本橋駅 徒歩5分
竣工年月
1991年08月
規模
地上9階 / 地下2階

フォトギャラリー

間取り 区画 面積 賃料
(管理費含)
保証金・敷金 入居日 用途仕様
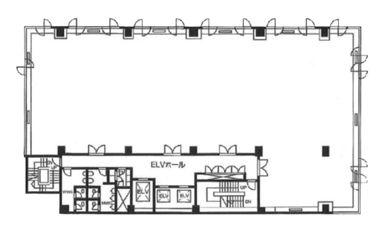
8 170.27
19,000円/坪
3,235,130円(税別)
12ヶ月 即入居可能 事務所
OAフロアー
1 66.16
要問合せ 要問合せ 要問合せ 事務所
OAフロアー
2 158.3
要問合せ 要問合せ 要問合せ 事務所
OAフロアー
3 148.37
要問合せ 要問合せ 要問合せ 事務所
OAフロアー
4 148.37
要問合せ 要問合せ 要問合せ 事務所
OAフロアー
5 181.67
要問合せ 要問合せ 要問合せ 事務所
OAフロアー
5 170.27
要問合せ 要問合せ 要問合せ 事務所
OAフロアー
6 39.97
要問合せ 要問合せ 要問合せ 事務所
OAフロアー
6 181.67
要問合せ 要問合せ 要問合せ 事務所
OAフロアー
6 170.27
要問合せ 要問合せ 要問合せ 事務所
OAフロアー
7 170.27
要問合せ 要問合せ 要問合せ 事務所
OAフロアー
8 57
要問合せ 要問合せ 要問合せ 事務所
OAフロアー
801号 91.37
要問合せ 要問合せ 要問合せ 事務所
OAフロアー
9 47.74
要問合せ 要問合せ 要問合せ 事務所
OAフロアー

貸室面積合計 170.27

※複数の貸室合計も表示されます。

お電話でのお問い合わせ

03-6278-5609

平日9:00 ~ 18:00(土日祝除く)

STEP 1
お問い合わせ・ご相談
STEP 2
現地見学
STEP 3
ご契約・お手続き
STEP 4
引き渡し・運用サポート

近隣情報

郵便局
日本橋大伝馬町郵便局
東京都中央区日本橋大伝馬町12-1
銀行
三菱UFJ銀行 大伝馬町支店
東京都中央区日本橋大伝馬町8-1

物件概要

基準階坪数
170.27坪
耐震
対応済み

※1981年6月1日以降に確認申請された建物は新耐震基準に該当しますが、当サイトでは原則として1982年6月1日以降に竣工した物件を新耐震として表記しています。

設備詳細

空調
個別空調
トイレ
男女別
エレベーター
3基

主な入居テナント

  • トライアス株式会社
  • ビーエルテック株式会社
  • プロメガ株式会社
  • EMソリューションズ株式会社
スタッフコメント
中央区日本橋大伝馬町に位置する「マツモトビル」は、馬喰町・小伝馬町・ 馬喰横山の各駅がいずれも徒歩2~3分に加え、東日本橋駅も徒歩圏内という、機動力の高い立地が魅力です。江戸通りから少し入った場所にある地下2階地上9階建てのSRC造で、個別空調、男女別トイレ、エレベーター3基を備え、機械警備による安心の管理体制を採用しています。24時間使用可能で、柔軟なワークスタイルに対応するオフィスビルです。