飯田橋セントラルビル

情報更新日:2026年05月15日
物件名
飯田橋セントラルビル
所在地
東京都千代田区飯田橋4-7-10
アクセス
総武線 飯田橋駅 徒歩2分
竣工年月
1983年04月
規模
地上9階

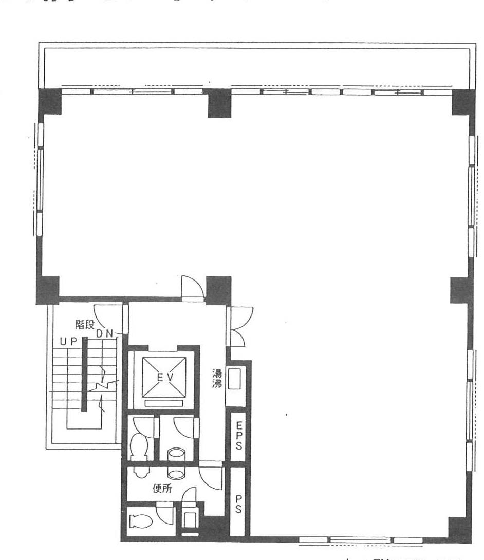
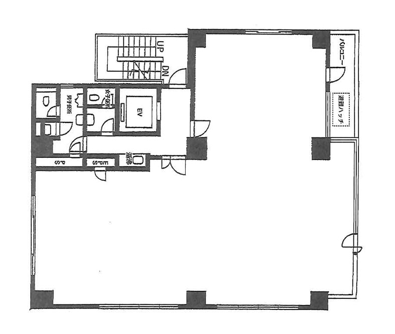
フォトギャラリー

間取り 区画 面積 賃料
(管理費含)
保証金・敷金 入居日 用途仕様
1 37.27
要問合せ 10ヶ月 即入居可能 店舗
OAフロアー
3 49.51
要問合せ 要問合せ 要問合せ 事務所
OAフロアー
7 50.52
要問合せ 要問合せ 要問合せ 事務所
OAフロアー
8 50.52
要問合せ 要問合せ 要問合せ 事務所
OAフロアー
9 44.19
要問合せ 要問合せ 要問合せ 店舗
OAフロアー

貸室面積合計 37.27

※複数の貸室合計も表示されます。

お電話でのお問い合わせ

03-6278-5609

平日9:00 ~ 18:00(土日祝除く)

STEP 1
お問い合わせ・ご相談
STEP 2
現地見学
STEP 3
ご契約・お手続き
STEP 4
引き渡し・運用サポート

近隣情報

郵便局
麹町飯田橋通郵便局
東京都千代田区飯田橋2-7-6
銀行
三井住友銀行 飯田橋支店
東京都新宿区揚場町1-18 飯田橋ビル

物件概要

基準階坪数
50.52坪
耐震
対応済み

※1981年6月1日以降に確認申請された建物は新耐震基準に該当しますが、当サイトでは原則として1982年6月1日以降に竣工した物件を新耐震として表記しています。

設備詳細

空調
個別空調
トイレ
男女別
エレベーター
1基

主な入居テナント

  • 株式会社セレブリックス
スタッフコメント
JR中央・総武線・飯田橋駅から徒歩2分、水道橋駅や九段下駅も徒歩圏内にあり、交通アクセスの良い立地です。個別空調を採用し、日々の業務に合わせた室内調整が可能で、男女別トイレなども備え、基本的な設備面も整っています。周辺利便性が高く、実務面で扱いやすい条件がそろっています。