Biz Feel 四谷三丁目

情報更新日:2026年04月17日
物件名
Biz Feel 四谷三丁目
所在地
東京都新宿区四谷3-13-11
アクセス
丸ノ内線 四谷三丁目駅 徒歩2分
丸ノ内線 新宿御苑前駅 徒歩9分
都営新宿線 曙橋駅 徒歩9分
総武線 四ツ谷駅 徒歩14分
竣工年月
1994年03月
規模
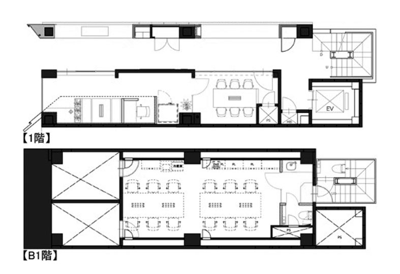
地上9階 / 地下1階

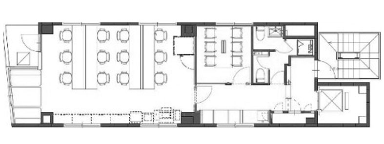
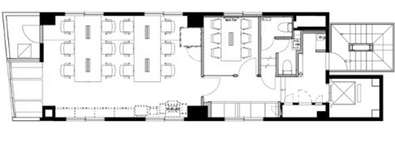
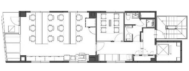
フォトギャラリー

間取り 区画 面積 賃料
(管理費含)
保証金・敷金 入居日 用途仕様
2 20.18
30,000円/坪
605,400円(税別)
要問合せ 即入居可能 事務所
OAフロアー
B1 13.24
要問合せ 要問合せ 要問合せ 事務所・店舗
OAフロアー
B1+1 21.64
要問合せ 要問合せ 要問合せ 事務所
OAフロアー
3 20.18
要問合せ 要問合せ 要問合せ 事務所
OAフロアー
4 20.9
要問合せ 要問合せ 要問合せ 事務所
OAフロアー
4 20.21
要問合せ 要問合せ 要問合せ 事務所
OAフロアー
6 20.9
要問合せ 要問合せ 要問合せ 事務所
OAフロアー
7 20.21
要問合せ 要問合せ 要問合せ 事務所
OAフロアー
8 20.21
要問合せ 要問合せ 要問合せ 事務所
OAフロアー
9 17.04
要問合せ 要問合せ 要問合せ 事務所
OAフロアー

貸室面積合計 20.18

※複数の貸室合計も表示されます。

お電話でのお問い合わせ

03-6278-5609

平日9:00 ~ 18:00(土日祝除く)

STEP 1
お問い合わせ・ご相談
STEP 2
現地見学
STEP 3
ご契約・お手続き
STEP 4
引き渡し・運用サポート

近隣情報

郵便局
新宿花園郵便局
東京都新宿区新宿1-27-1
銀行
みずほ銀行 四谷支店
東京都新宿区四谷3-3-1

物件概要

基準階坪数
20.18坪
耐震
対応済み

※1981年6月1日以降に確認申請された建物は新耐震基準に該当しますが、当サイトでは原則として1982年6月1日以降に竣工した物件を新耐震として表記しています。

設備詳細

空調
個別空調
トイレ
男女共同
エレベーター
1基

主な入居テナント

  • 株式会社アットファイブ
  • 株式会社グローウィング
  • 株式会社グロースピリット
  • wakaru株式会社
スタッフコメント
東京メトロ丸ノ内線「四谷三丁目」駅から徒歩2分の立地にある物件です。「新宿御苑前」駅や都営新宿線「曙橋」駅も徒歩圏内で、複数路線を利用できる環境にあります。新宿通り沿いに面し、交通利便性と視認性を兼ね備えた立地が特徴。S造地下1階付9階建で、グレーを基調とした重厚感のある外観が印象的です。個別空調・男女別トイレを備え、機械警備やEV不停止機能によりセキュリティ面にも配慮。24時間使用可能なオフィスビルです。