クローバー青山・ONE

情報更新日:2026年05月28日
物件名
クローバー青山・ONE
所在地
東京都港区北青山1-3-2
アクセス
銀座線 青山一丁目駅 徒歩1分
半蔵門線 青山一丁目駅 徒歩1分
都営大江戸線 青山一丁目駅 徒歩1分
千代田線 乃木坂駅 徒歩12分
竣工年月
2008年11月
規模
地上10階

フォトギャラリー

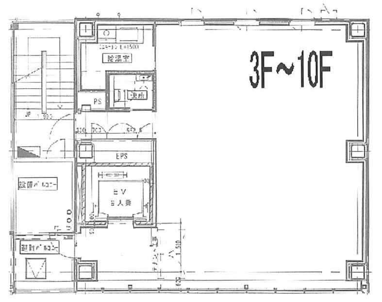
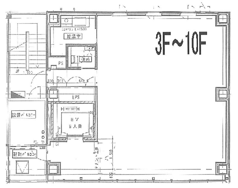
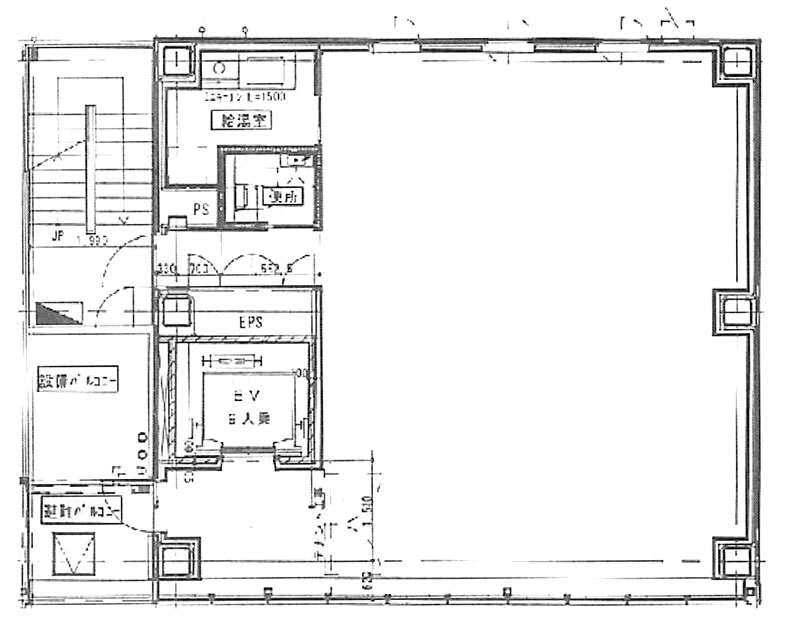
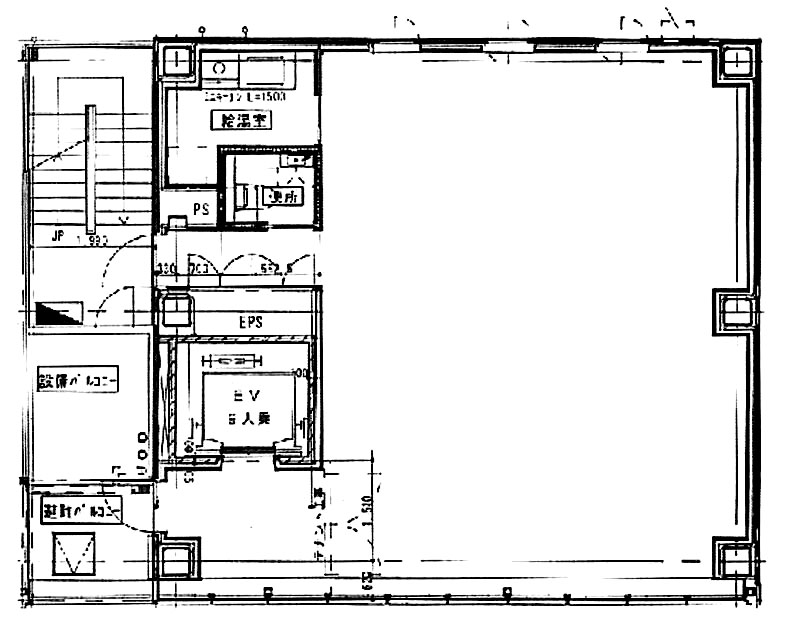
間取り 区画 面積 賃料
(管理費含)
保証金・敷金 入居日 用途仕様
3 23.62
33,000円/坪
779,460円(税別)
12ヶ月 即入居可能 事務所
OAフロアー
1~2 23.72
要問合せ 要問合せ 要問合せ 店舗
OAフロアー
1~2 23.31
要問合せ 要問合せ 要問合せ 店舗
OAフロアー
1~2 47.03
要問合せ 要問合せ 要問合せ 店舗
OAフロアー
2 23.31
要問合せ 要問合せ 要問合せ 事務所
OAフロアー
4 23.62
要問合せ 要問合せ 要問合せ 事務所
OAフロアー
5 23.62
要問合せ 要問合せ 要問合せ 事務所
OAフロアー
6 23.62
要問合せ 要問合せ 要問合せ 事務所
OAフロアー
7 23.62
要問合せ 要問合せ 要問合せ 事務所
OAフロアー
8 23.62
要問合せ 要問合せ 要問合せ 事務所
OAフロアー
9 23.62
要問合せ 要問合せ 要問合せ 事務所
OAフロアー
10 23.62
要問合せ 要問合せ 要問合せ 事務所
OAフロアー

貸室面積合計 23.62

※複数の貸室合計も表示されます。

お電話でのお問い合わせ

03-6278-5609

平日9:00 ~ 18:00(土日祝除く)

STEP 1
お問い合わせ・ご相談
STEP 2
現地見学
STEP 3
ご契約・お手続き
STEP 4
引き渡し・運用サポート

近隣情報

郵便局
赤坂郵便局
東京都港区赤坂8-4-17
銀行
三菱UFJ銀行 青山通支店
東京都港区南青山1-1-1

物件概要

基準階坪数
23.62坪
耐震
対応済み

※1981年6月1日以降に確認申請された建物は新耐震基準に該当しますが、当サイトでは原則として1982年6月1日以降に竣工した物件を新耐震として表記しています。

設備詳細

空調
個別空調
トイレ
男女共同
エレベーター
1基

主な入居テナント

  • 株式会社 青山ビジネスフォーラム
  • XYZ株式会社
  • 株式会社ブレインアカデミー
スタッフコメント
港区北青山一丁目に位置し、東京メトロ銀座線・半蔵門線・都営大江戸線が乗り入れる青山一丁目駅徒歩1分と、非常に高い交通利便性を備えた立地です。青山通り沿いにあり、周辺は業務施設が集積するエリアとなっています。地上10階建ての建物で、デザイン性を感じさせる外観が印象的です。個別空調やトイレ(共用)、エレベーター1基、機械警備を備え、24時間使用可能で、駅近立地を活かした効率的な業務動線を組み立てやすいオフィスビルです。