朝風二号館

情報更新日:2026年05月22日
物件名
朝風二号館
所在地
東京都千代田区外神田1-16-9
アクセス
山手線 秋葉原駅 徒歩1分
日比谷線 秋葉原駅 徒歩3分
竣工年月
1971年01月
規模
地上9階 / 地下3階

フォトギャラリー

間取り 区画 面積 賃料
(管理費含)
保証金・敷金 入居日 用途仕様
3 217.74
要問合せ 9ヶ月 即入居可能 事務所・店舗
OAフロアー
4 229.24
要問合せ 要問合せ 要問合せ 事務所・店舗
OAフロアー
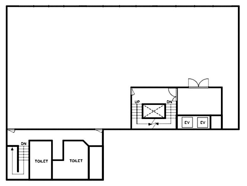
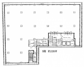
5 228.94
要問合せ 要問合せ 要問合せ 事務所
OAフロアー
7 229.24
要問合せ 要問合せ 要問合せ 事務所
OAフロアー

貸室面積合計 217.74

※複数の貸室合計も表示されます。

お電話でのお問い合わせ

03-6278-5609

平日9:00 ~ 18:00(土日祝除く)

STEP 1
お問い合わせ・ご相談
STEP 2
現地見学
STEP 3
ご契約・お手続き
STEP 4
引き渡し・運用サポート

近隣情報

郵便局
秋葉原UDX内郵便局
東京都千代田区外神田4-14-1(秋葉原UDXビル1階)
銀行
三菱UFJ銀行 神田駅前支店
東京都千代田区神田鍛冶町3-6-3

物件概要

基準階坪数
229.24坪
耐震
未対応

※1981年6月1日以降に確認申請された建物は新耐震基準に該当しますが、当サイトでは原則として1982年6月1日以降に竣工した物件を新耐震として表記しています。

設備詳細

空調
個別空調
トイレ
男女別
エレベーター
2基

主な入居テナント

  • 株式会社ソフマップ
スタッフコメント
千代田区外神田1丁目に位置する「朝風二号館」は、駅前立地ならではの高い視認性とスケール感のある外観が印象的なオフィスビルです。整然としたファサードは、秋葉原エリアの活気ある街並みにもよく映えます。JR山手線「秋葉原」駅から徒歩1分、東京メトロ日比谷線も利用可能と、通勤・来客ともに抜群の利便性を誇るロケーション。個別空調、OAフロア、男女別トイレ、エレベーター2基に加え有人警備を備え、快適性と高い安全性を兼ね備えたオフィス環境が整っています。