井門九段下ビル

情報更新日:2026年05月20日
物件名
井門九段下ビル
所在地
東京都千代田区九段北1-11-4
アクセス
東西線 九段下駅 徒歩1分
半蔵門線 九段下駅 徒歩1分
都営新宿線 九段下駅 徒歩1分
竣工年月
1991年04月
規模
地上9階 / 地下1階

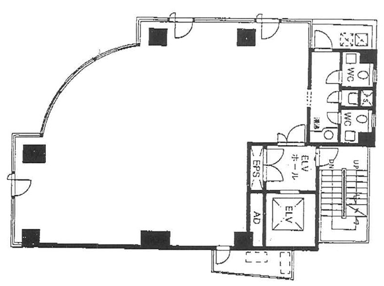
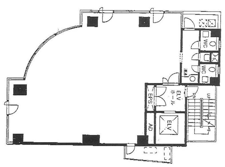
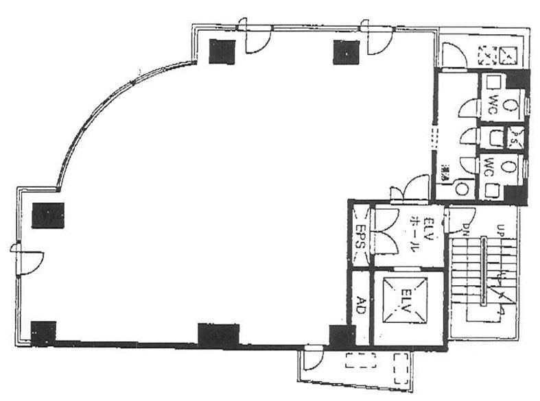
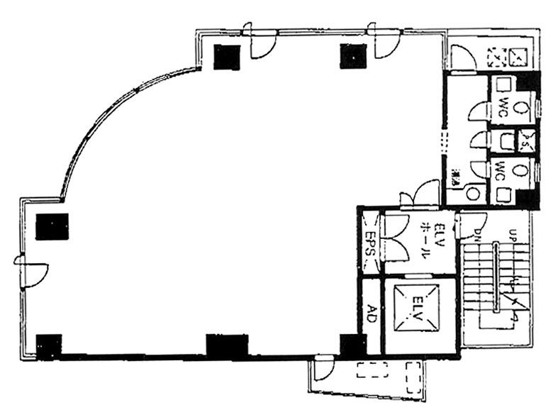
フォトギャラリー

間取り 区画 面積 賃料
(管理費含)
保証金・敷金 入居日 用途仕様
4 36.75
要問合せ 12ヶ月 即入居可能 事務所
タイルカーペット
B1 36.72
要問合せ 要問合せ 要問合せ 事務所・店舗
タイルカーペット
5 37.71
要問合せ 要問合せ 要問合せ 事務所
タイルカーペット
6 36.75
要問合せ 要問合せ 要問合せ 事務所
タイルカーペット
7 36.75
要問合せ 要問合せ 要問合せ 事務所
タイルカーペット
8 36.75
要問合せ 要問合せ 要問合せ 事務所
タイルカーペット
9 26.75
要問合せ 要問合せ 要問合せ 事務所
タイルカーペット

貸室面積合計 36.75

※複数の貸室合計も表示されます。

お電話でのお問い合わせ

03-6278-5609

平日9:00 ~ 18:00(土日祝除く)

STEP 1
お問い合わせ・ご相談
STEP 2
現地見学
STEP 3
ご契約・お手続き
STEP 4
引き渡し・運用サポート

近隣情報

郵便局
九段郵便局
東京都千代田区九段南1-4-6
銀行
みずほ銀行 九段支店
東京都千代田区神田神保町2-4

物件概要

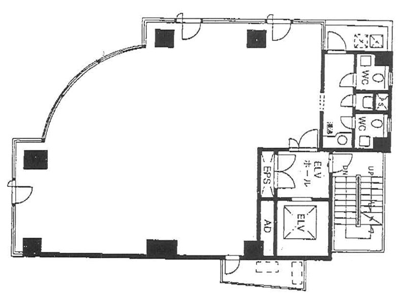
基準階坪数
36.75坪
耐震
対応済み

※1981年6月1日以降に確認申請された建物は新耐震基準に該当しますが、当サイトでは原則として1982年6月1日以降に竣工した物件を新耐震として表記しています。

設備詳細

空調
個別空調
トイレ
男女別
エレベーター
1基

主な入居テナント

  • 株式会社マイティテクノ
スタッフコメント
東京メトロ東西線・半蔵門線・都営新宿線の九段下駅から徒歩1分と、交通利便性の高い立地です。個別空調を採用しており、業務内容に応じた室内調整が可能で、男女別トイレなども備え、日常利用に必要な設備も整っています。駅近立地と落ち着いた周辺環境のバランスが良く、安定した利用を想定しやすい条件がそろっています。