乗物町中央ビル

情報更新日:2026年02月10日
物件名
乗物町中央ビル
所在地
東京都千代田区神田北乗物町11
アクセス
山手線 神田駅 徒歩2分
銀座線 神田駅 徒歩2分
竣工年月
1985年03月
規模
地上7階

フォトギャラリー

間取り 区画 面積 賃料
(管理費含)
保証金・敷金 入居日 用途仕様
2 43.15
18,000円/坪
776,700円(税別)
10ヶ月 即入居可能 事務所
OAフロアー
1 41.44
要問合せ 要問合せ 要問合せ 事務所
OAフロアー
3 42.87
要問合せ 要問合せ 要問合せ 事務所
OAフロアー
4 36.25
要問合せ 要問合せ 要問合せ 事務所
OAフロアー
5 32.09
要問合せ 要問合せ 要問合せ 事務所
OAフロアー
6~7 36.36
要問合せ 要問合せ 要問合せ 事務所
OAフロアー

貸室面積合計 43.15

※複数の貸室合計も表示されます。

お電話でのお問い合わせ

03-6278-5609

平日9:00 ~ 18:00(土日祝除く)

STEP 1
お問い合わせ・ご相談
STEP 2
現地見学
STEP 3
ご契約・お手続き
STEP 4
引き渡し・運用サポート

近隣情報

郵便局
千代田鍛冶町郵便局
東京都千代田区鍛冶町2-11-22
銀行
三菱UFJ銀行 神田駅前支店
東京都千代田区神田鍛冶町3-6-3

物件概要

基準階坪数
43坪
耐震
対応済み

※1981年6月1日以降に確認申請された建物は新耐震基準に該当しますが、当サイトでは原則として1982年6月1日以降に竣工した物件を新耐震として表記しています。

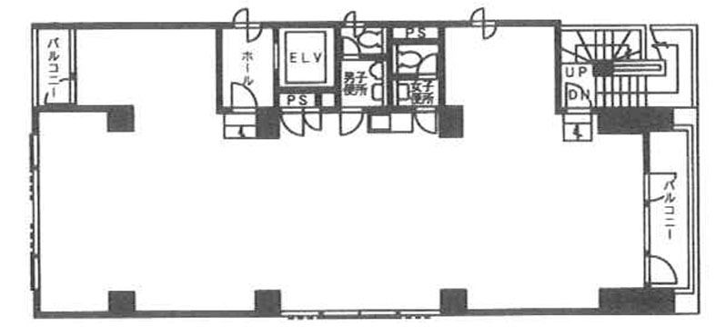
設備詳細

空調
個別空調
トイレ
男女別
エレベーター
1基

主な入居テナント

  • 現在テナント情報はありません
スタッフコメント
神田駅から徒歩2分に位置し、銀座線神田駅も徒歩圏内で利用できる立地です。周辺はオフィス街として落ち着いた雰囲気があり、都心での業務に適した環境です。空調は個別方式を採用し、男女別トイレなども備えています。立地条件と設備面を踏まえ、実務利用に適したオフィスビルです。