大手町フィナンシャルシティノースタワー

情報更新日:2026年05月12日
物件名
大手町フィナンシャルシティノースタワー
所在地
東京都千代田区大手町1-9-5
アクセス
丸ノ内線 大手町駅 徒歩1分
東西線 大手町駅 徒歩1分
山手線 東京駅 徒歩9分
竣工年月
2012年10月
規模
地上30階 / 地下4階

フォトギャラリー

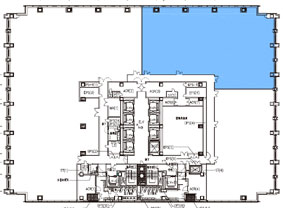
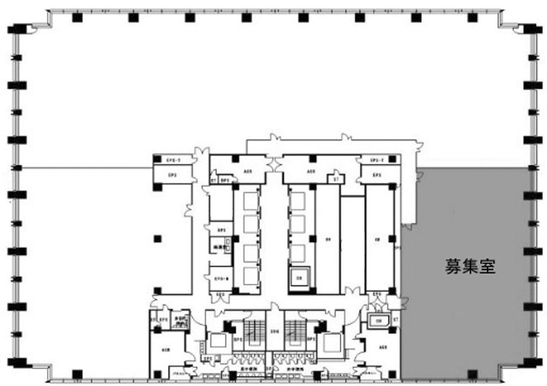
間取り 区画 面積 賃料
(管理費含)
保証金・敷金 入居日 用途仕様
23コア 12.56
要問合せ 要問合せ 即入居可能 事務所
OAフロアー
21 135.76
要問合せ 要問合せ 要問合せ 事務所
OAフロアー
21 364.72
要問合せ 要問合せ 要問合せ 事務所
OAフロアー
22 453.8
要問合せ 要問合せ 要問合せ 事務所
OAフロアー
23 538.12
要問合せ 要問合せ 要問合せ 事務所
OAフロアー
23 182.04
要問合せ 要問合せ 要問合せ 事務所
OAフロアー
23 135.77
要問合せ 要問合せ 要問合せ 事務所
OAフロアー
23 555.13
要問合せ 要問合せ 要問合せ 事務所
OAフロアー
23-2303~23 350
要問合せ 要問合せ 要問合せ 事務所
OAフロアー
24 691.39
要問合せ 要問合せ 要問合せ 事務所
OAフロアー
24 128.87
要問合せ 要問合せ 要問合せ 事務所
OAフロアー
24 135.77
要問合せ 要問合せ 要問合せ 事務所
OAフロアー
25 182.04
要問合せ 要問合せ 要問合せ 事務所
OAフロアー
28 716.63
要問合せ 要問合せ 要問合せ 事務所
OAフロアー
29 716.63
要問合せ 要問合せ 要問合せ 事務所
OAフロアー

貸室面積合計 12.56

※複数の貸室合計も表示されます。

お電話でのお問い合わせ

03-6278-5609

平日9:00 ~ 18:00(土日祝除く)

STEP 1
お問い合わせ・ご相談
STEP 2
現地見学
STEP 3
ご契約・お手続き
STEP 4
引き渡し・運用サポート

近隣情報

郵便局
KDDI大手町ビル内郵便局
東京都千代田区大手町1-8-1
銀行
三井住友銀行 三井物産ビル支店
東京都千代田区大手町1-2-1

物件概要

耐震
対応済み

※1981年6月1日以降に確認申請された建物は新耐震基準に該当しますが、当サイトでは原則として1982年6月1日以降に竣工した物件を新耐震として表記しています。

設備詳細

空調
セントラル空調
トイレ
男女別
エレベーター
9基

主な入居テナント

  • 日本政策金融公庫
  • KPMG グループ法人
  • インフォーマ
  • モノリス法律事務所
  • Equinix TY4 Data Center(事業所)
スタッフコメント
東京メトロ丸ノ内線・東西線「大手町」駅から徒歩1分に位置し、東京駅も徒歩圏内で利用できる、都心主要エリアへのアクセスに優れた立地です。都心部でも存在感のある規模を有しており、空調はセントラル方式を採用し、9基のエレベーターと男女別トイレを備えています。立地条件と設備水準を踏まえ、安定したオフィス利用を検討しやすいビルです。