住友不動産三番町ビル

情報更新日:2026年04月22日
物件名
住友不動産三番町ビル
所在地
東京都千代田区三番町6-26
アクセス
半蔵門線 半蔵門駅 徒歩5分
都営新宿線 市ヶ谷駅 徒歩13分
竣工年月
1993年05月
規模
地上6階 / 地下2階

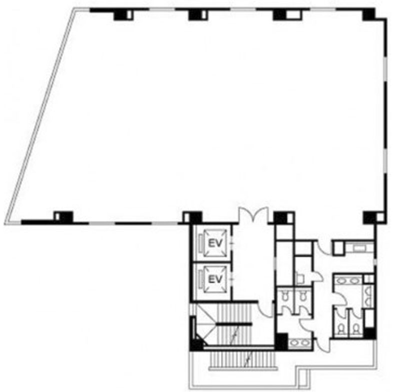
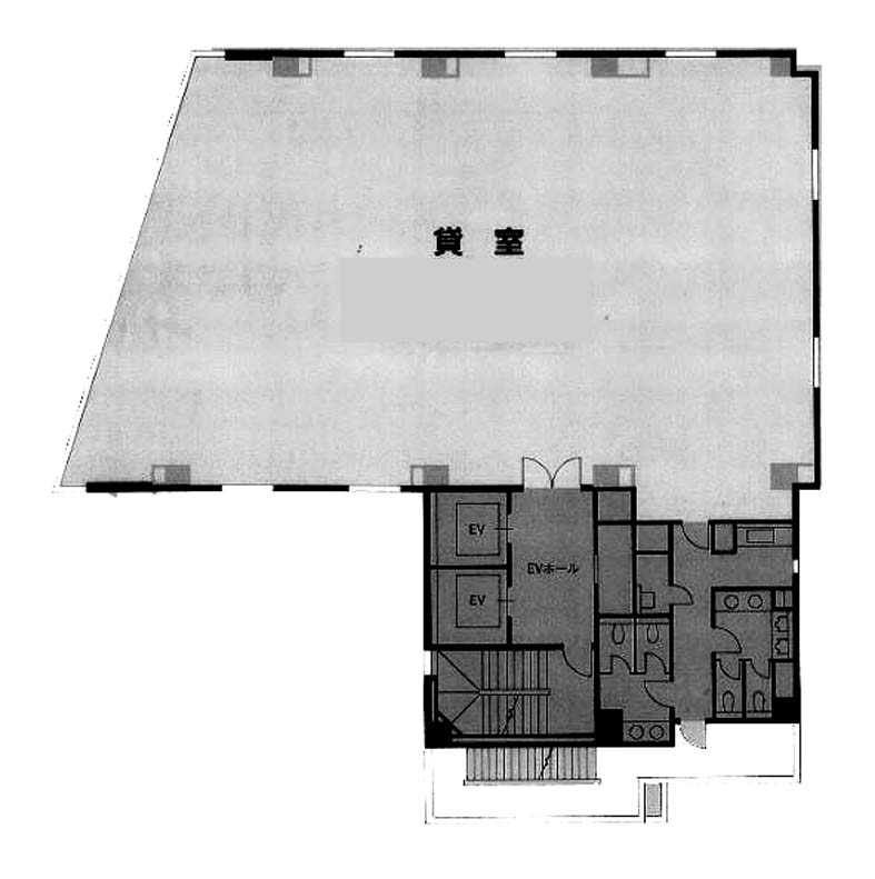
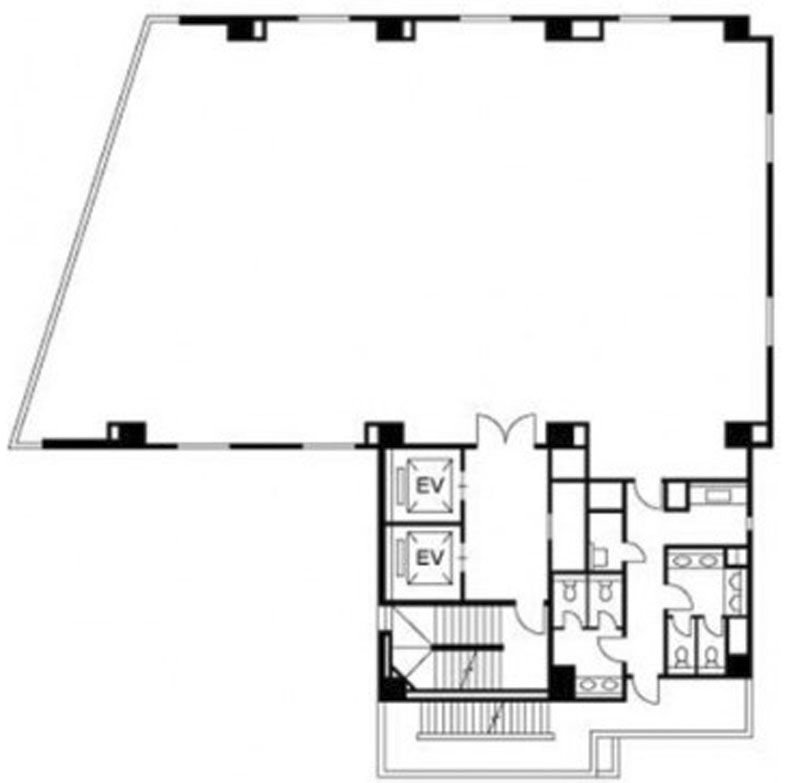
フォトギャラリー

間取り 区画 面積 賃料
(管理費含)
保証金・敷金 入居日 用途仕様
3 90.8
要問合せ 要問合せ 即入居可能 事務所
-
5 90.8
要問合せ 要問合せ 2026年06月01日 事務所
-
基準 90.8
要問合せ 要問合せ 要問合せ 事務所
-
6 68.43
要問合せ 要問合せ 要問合せ 事務所
-

貸室面積合計 181.6

※複数の貸室合計も表示されます。

お電話でのお問い合わせ

03-6278-5609

平日9:00 ~ 18:00(土日祝除く)

STEP 1
お問い合わせ・ご相談
STEP 2
現地見学
STEP 3
ご契約・お手続き
STEP 4
引き渡し・運用サポート

近隣情報

郵便局
麹町郵便局
東京都千代田区九段南4-5-9
銀行
三菱UFJ銀行 麹町支店
東京都千代田区麹町4-1

物件概要

基準階坪数
90.8坪
耐震
対応済み

※1981年6月1日以降に確認申請された建物は新耐震基準に該当しますが、当サイトでは原則として1982年6月1日以降に竣工した物件を新耐震として表記しています。

設備詳細

空調
-
トイレ
-
エレベーター
2基

主な入居テナント

  • レールダルメディカルジャパン株式会社
  • フラクタルシステムズ株式会社
  • 株式会社イー・サポート
スタッフコメント
東京都千代田区三番町6丁目の「住友不動産三番町ビル」は、明るい石張りの外観と整った窓割りが印象的な、落ち着きのあるオフィスビルです。植栽を配したエントランス周りは清潔感があり、来訪者にも好印象を与えます。東京メトロ半蔵門線「半蔵門」駅徒歩5分と、皇居近接エリアならではの良好な環境も魅力。エレベーター2基を備え、安定したビジネス拠点として利用しやすい物件です。