住友不動産芝園ビル

情報更新日:2026年04月22日
物件名
住友不動産芝園ビル
所在地
東京都港区芝公園2-10-1
アクセス
都営三田線 芝公園駅 徒歩4分
山手線 浜松町駅 徒歩5分
都営大江戸線 大門駅 徒歩5分
竣工年月
1990年10月
規模
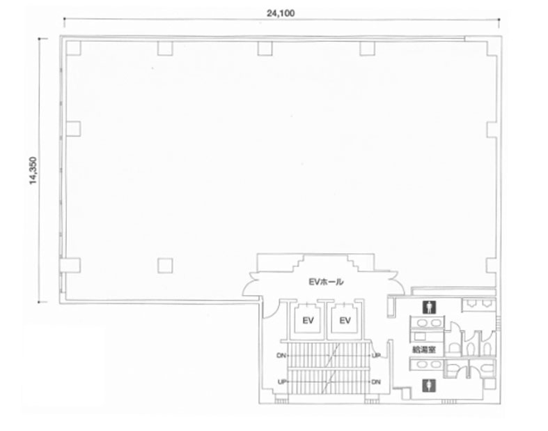
地上8階 / 地下1階

フォトギャラリー

間取り 区画 面積 賃料
(管理費含)
保証金・敷金 入居日 用途仕様
4 49.9
要問合せ 要問合せ 即入居可能 事務所
OAフロアー
基準 98.11
要問合せ 要問合せ 要問合せ 事務所
OAフロアー
5 97.76
要問合せ 要問合せ 要問合せ 事務所
OAフロアー
6 77.8
要問合せ 要問合せ 要問合せ 事務所
OAフロアー
7 55.42
要問合せ 要問合せ 要問合せ 事務所
OAフロアー

貸室面積合計 49.9

※複数の貸室合計も表示されます。

お電話でのお問い合わせ

03-6278-5609

平日9:00 ~ 18:00(土日祝除く)

STEP 1
お問い合わせ・ご相談
STEP 2
現地見学
STEP 3
ご契約・お手続き
STEP 4
引き渡し・運用サポート

近隣情報

郵便局
港浜松町郵便局
東京都港区芝大門2-4-18
銀行
みずほ銀行 浜松町支店
東京都港区浜松町2-4-1

物件概要

基準階坪数
98.11坪
耐震
対応済み

※1981年6月1日以降に確認申請された建物は新耐震基準に該当しますが、当サイトでは原則として1982年6月1日以降に竣工した物件を新耐震として表記しています。

設備詳細

空調
-
トイレ
-
エレベーター
2基

主な入居テナント

  • Retty株式会社
  • 株式会社センチュリオン
  • オーミインダストリー株式会社
スタッフコメント
芝公園エリアに位置し、芝公園駅から徒歩4分と、日常の移動を組み立てやすい距離感です。浜松町駅や大門駅も徒歩圏内にあり、行き先に応じて動線を選びやすい点が利便性につながります。1990年10月竣工、地上8階建ての建物です。エレベーターは2基設置されており、日々の利用においても余裕を持ちやすい構成といえます。公園に近い立地特性を踏まえ、落ち着いた環境での業務利用を想定しやすい物件です。