藤和内神田ビル

情報更新日:2026年04月07日
物件名
藤和内神田ビル
所在地
東京都千代田区内神田2-4-4
アクセス
山手線 神田駅 徒歩5分
丸ノ内線 大手町駅 徒歩7分
竣工年月
1984年07月
規模
地上8階

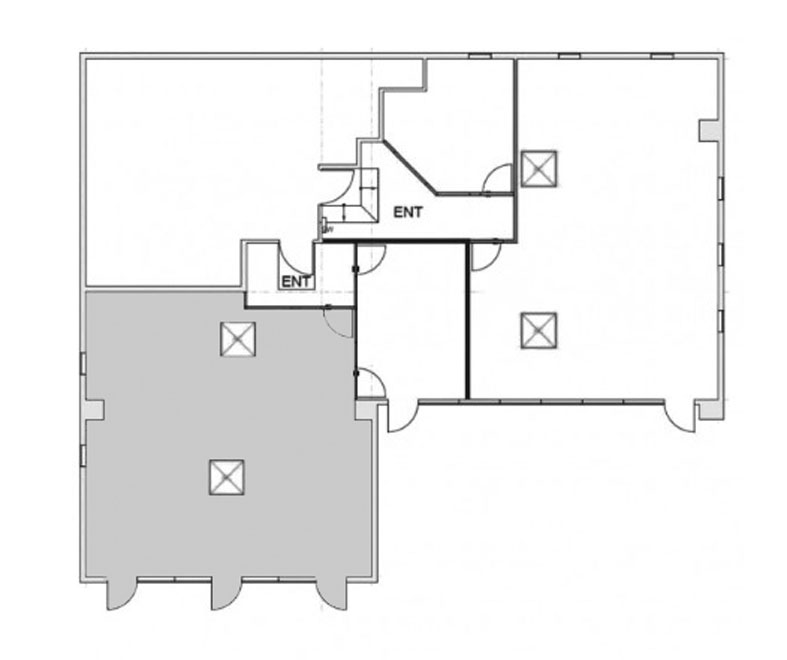
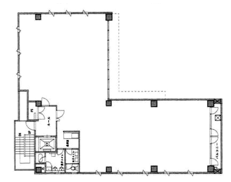
フォトギャラリー

間取り 区画 面積 賃料
(管理費含)
保証金・敷金 入居日 用途仕様
801 18.49
20,000円/坪
369,800円(税別)
6ヶ月 即入居可能 事務所
タイルカーペット
2 66.32
要問合せ 要問合せ 要問合せ 事務所
タイルカーペット
3 24.25
要問合せ 要問合せ 要問合せ 事務所
タイルカーペット
302 26.68
要問合せ 要問合せ 要問合せ 事務所
タイルカーペット
4 44.41
要問合せ 要問合せ 要問合せ 事務所
タイルカーペット
5 44.41
要問合せ 要問合せ 要問合せ 事務所
タイルカーペット
6 50.14
要問合せ 要問合せ 要問合せ 事務所
-
6 44.41
要問合せ 要問合せ 要問合せ 事務所
タイルカーペット
601 22.11
要問合せ 要問合せ 要問合せ 事務所
タイルカーペット
602 21.17
要問合せ 要問合せ 要問合せ 事務所
タイルカーペット
702 26
要問合せ 要問合せ 要問合せ 事務所
-
802 21.37
要問合せ 要問合せ 要問合せ 事務所
タイルカーペット

貸室面積合計 18.49

※複数の貸室合計も表示されます。

お電話でのお問い合わせ

03-6278-5609

平日9:00 ~ 18:00(土日祝除く)

STEP 1
お問い合わせ・ご相談
STEP 2
現地見学
STEP 3
ご契約・お手続き
STEP 4
引き渡し・運用サポート

近隣情報

郵便局
神田今川橋郵便局
東京都千代田区鍛冶町1-7-11
銀行
三菱UFJ銀行 神田駅前支店
東京都千代田区神田鍛冶町3-6-3

物件概要

基準階坪数
44.41坪
耐震
対応済み

※1981年6月1日以降に確認申請された建物は新耐震基準に該当しますが、当サイトでは原則として1982年6月1日以降に竣工した物件を新耐震として表記しています。

設備詳細

空調
個別空調
トイレ
男女別
エレベーター
1基

主な入居テナント

  • 現在テナント情報はありません
スタッフコメント
神田駅から徒歩5分に位置し、大手町駅も徒歩圏内で利用できる利便性の高い立地です。周辺は都心らしい業務エリアで、落ち着いた雰囲気の中に日常的な利便性も備わっています。個別空調、男女別トイレが整っている点も評価でき、周辺環境と立地条件を踏まえ、日常利用に適した構成のオフィスビルです。