NOVEL WORK Jimbocho

情報更新日:2026年05月25日
物件名
NOVEL WORK Jimbocho
所在地
東京都千代田区神田神保町2-8-20
アクセス
半蔵門線 神保町駅 徒歩3分
都営新宿線 神保町駅 徒歩3分
東西線 九段下駅 徒歩6分
総武線 水道橋駅 徒歩8分
竣工年月
1986年03月
規模
地上7階

フォトギャラリー

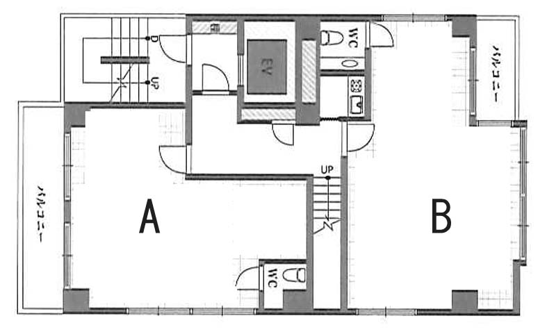
間取り 区画 面積 賃料
(管理費含)
保証金・敷金 入居日 用途仕様
3 30.39
26,000円/坪
790,140円(税別)
要問合せ 要問合せ 事務所
OAフロアー
5+6 50.25
25,000円/坪
1,256,250円(税別)
要問合せ 即入居可能 事務所
OAフロアー
2 30.39
要問合せ 要問合せ 要問合せ 事務所
OAフロアー
4 29.65
要問合せ 要問合せ 要問合せ 事務所
-
4 30.39
要問合せ 要問合せ 要問合せ 事務所
OAフロアー
5A 10.85
要問合せ 要問合せ 要問合せ 事務所
-
5B 11.12
要問合せ 要問合せ 要問合せ 事務所
-

貸室面積合計 80.64

※複数の貸室合計も表示されます。

お電話でのお問い合わせ

03-6278-5609

平日9:00 ~ 18:00(土日祝除く)

STEP 1
お問い合わせ・ご相談
STEP 2
現地見学
STEP 3
ご契約・お手続き
STEP 4
引き渡し・運用サポート

近隣情報

郵便局
神田北神保町郵便局
東京都千代田区神田神保町2-2
銀行
みずほ銀行 九段支店
東京都千代田区神田神保町2-4

物件概要

基準階坪数
30.39坪
耐震
対応済み

※1981年6月1日以降に確認申請された建物は新耐震基準に該当しますが、当サイトでは原則として1982年6月1日以降に竣工した物件を新耐震として表記しています。

設備詳細

空調
個別空調
トイレ
男女別
エレベーター
1基

主な入居テナント

  • ICT Solution株式会社
スタッフコメント
神保町駅から徒歩3分に位置し、九段下駅や水道橋駅も徒歩圏内で利用できる利便性の高い立地です。周辺はオフィスや店舗が程よく混在し、業務と来訪対応のどちらにも対応しやすい環境が整っています。個別空調、男女別トイレなども備えています。フロア単位で落ち着いた利用を想定しやすく、日中の執務に集中しやすいオフィスビルです。