A-RISE神田(神田風源ビル)

情報更新日:2026年04月13日
物件名
A-RISE神田(神田風源ビル)
所在地
東京都千代田区岩本町1-11-2
アクセス
日比谷線 小伝馬町駅 徒歩3分
総武本線 馬喰町駅 徒歩5分
都営新宿線 馬喰横山駅 徒歩5分
竣工年月
2015年03月
規模
地上8階

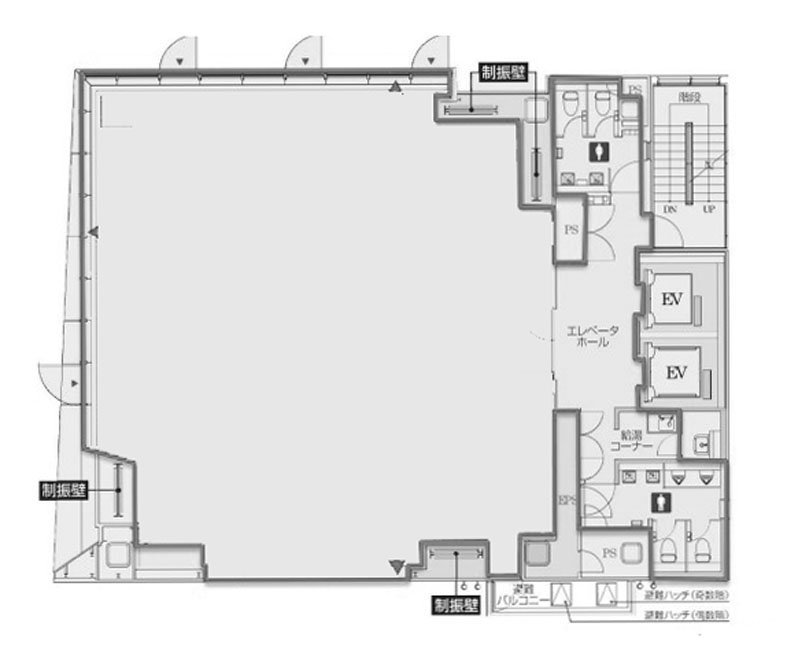
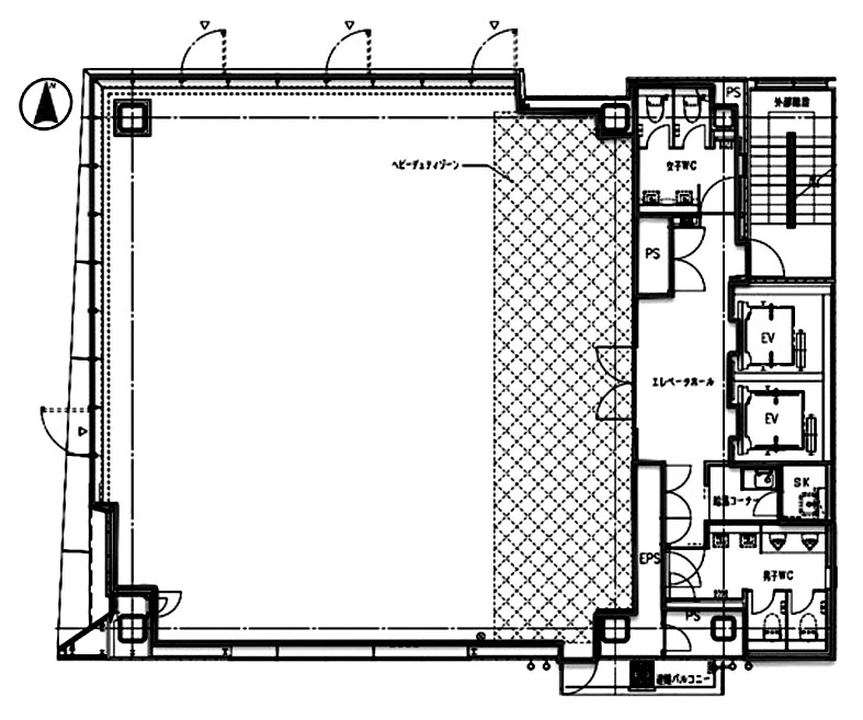
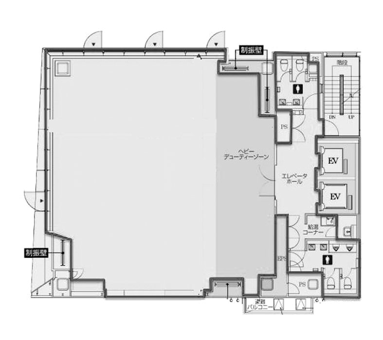
フォトギャラリー

間取り 区画 面積 賃料
(管理費含)
保証金・敷金 入居日 用途仕様
8 67.04
要問合せ 12ヶ月 即入居可能 事務所・物流センター
OAフロアー
2 81.4
要問合せ 要問合せ 要問合せ 事務所
OAフロアー
2+3 146.1
要問合せ 要問合せ 要問合せ 事務所
OAフロアー
3 64.7
要問合せ 要問合せ 要問合せ 事務所
OAフロアー
4 65.12
要問合せ 要問合せ 要問合せ 事務所
OAフロアー
5 65.12
要問合せ 要問合せ 要問合せ 事務所
OAフロアー
6 65.12
要問合せ 要問合せ 要問合せ 事務所
OAフロアー
7 53.69
要問合せ 要問合せ 要問合せ 事務所
-

貸室面積合計 67.04

※複数の貸室合計も表示されます。

お電話でのお問い合わせ

03-6278-5609

平日9:00 ~ 18:00(土日祝除く)

STEP 1
お問い合わせ・ご相談
STEP 2
現地見学
STEP 3
ご契約・お手続き
STEP 4
引き渡し・運用サポート

近隣情報

郵便局
千代田岩本町郵便局
東京都千代田区岩本町2-11-9
銀行
三菱UFJ銀行 大伝馬町支店
東京都中央区日本橋大伝馬町8-1

物件概要

基準階坪数
65.12坪
耐震
対応済み

※1981年6月1日以降に確認申請された建物は新耐震基準に該当しますが、当サイトでは原則として1982年6月1日以降に竣工した物件を新耐震として表記しています。

設備詳細

空調
個別空調
トイレ
男女別
エレベーター
2基

主な入居テナント

  • バンユウ株式会社
  • 株式会社当直連携基盤
  • 株式会社山口シネマ
  • 株式会社LIFESHIFT
スタッフコメント
東京都千代田区岩本町1丁目の「A-RISE神田(神田風源ビル)」は、コンクリートとガラスを組み合わせた先進的な外観が印象的なオフィスビルです。立体的な構成とシャープなフォルムが視認性を高め、デザイン性の高さが際立ちます。東京メトロ日比谷線「小伝馬町」駅徒歩3分をはじめ、馬喰町・馬喰横山駅も利用可能な立地。個別空調、男女別トイレ、エレベーター2基、機械警備を備え、快適性とセキュリティ性を兼ね備えたオフィス環境です。