青山FSビル

情報更新日:2026年03月13日
物件名
青山FSビル
所在地
東京都港区南青山3-4-16
アクセス
銀座線 外苑前駅 徒歩7分
半蔵門線 表参道駅 徒歩8分
竣工年月
1998年08月
規模
地上3階

フォトギャラリー

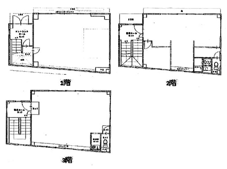
間取り 区画 面積 賃料
(管理費含)
保証金・敷金 入居日 用途仕様
一棟 53.46
26,189円/坪
1,400,064円(税別)
3ヶ月 即入居可能 事務所・店舗
-
1 14.11
要問合せ 要問合せ 要問合せ 事務所
-
2 14.11
要問合せ 要問合せ 要問合せ 事務所
-
3 14.11
要問合せ 要問合せ 要問合せ 事務所
-

貸室面積合計 53.46

※複数の貸室合計も表示されます。

お電話でのお問い合わせ

03-6278-5609

平日9:00 ~ 18:00(土日祝除く)

STEP 1
お問い合わせ・ご相談
STEP 2
現地見学
STEP 3
ご契約・お手続き
STEP 4
引き渡し・運用サポート

近隣情報

郵便局
外苑前郵便局
東京都港区南青山2-27-23
銀行
三井住友銀行 青山支店
東京都港区南青山5-9-12

物件概要

基準階坪数
14.11坪
耐震
対応済み

※1981年6月1日以降に確認申請された建物は新耐震基準に該当しますが、当サイトでは原則として1982年6月1日以降に竣工した物件を新耐震として表記しています。

設備詳細

空調
-
トイレ
-
エレベーター
-

主な入居テナント

  • 現在テナント情報はありません
スタッフコメント
南青山エリアに立地し、外苑前駅から徒歩7分と、落ち着いた周辺環境の中で利用しやすい立地です。表参道駅も徒歩圏内にあり、方面に応じた移動がしやすい点も利便性につながります。1998年8月竣工の地上3階建てで、周辺は住宅と商業施設が混在するエリアです。日常業務を進めやすい環境が保たれており、周辺環境と立地条件を踏まえると、都心部での実務利用に適した構成といえます。