| 間取り | 区画 | 面積 | 賃料 (管理費含) |
保証金・敷金 | 入居日 | 用途仕様 |
|---|---|---|---|---|---|---|
| 4 |
63.33坪 |
15,000円/坪 949,950円(税別) |
要問合せ | 即入居可能 |
事務所・店舗 タイルカーペット |
|
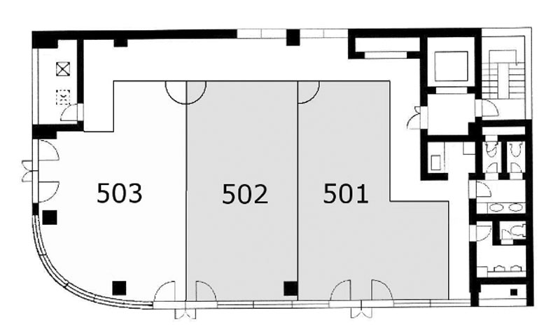
| 501 |
19.22坪 |
15,000円/坪 288,300円(税別) |
5ヶ月 | 2026年06月 上旬 |
事務所 タイルカーペット |
|
| 603 |
23.68坪 |
15,000円/坪 355,200円(税別) |
要問合せ | 即入居可能 |
事務所・店舗 タイルカーペット |
|
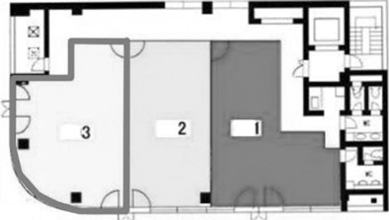
| 1 |
38.46坪 |
要問合せ | 要問合せ | 要問合せ |
事務所 タイルカーペット |
|
| 2 |
63.33坪 |
要問合せ | 要問合せ | 要問合せ |
事務所 タイルカーペット |
|
| 3 |
63.33坪 |
要問合せ | 要問合せ | 要問合せ |
事務所 タイルカーペット |
|
| 301 |
19.22坪 |
要問合せ | 要問合せ | 要問合せ |
事務所 タイルカーペット |
|
| 302 |
19.65坪 |
要問合せ | 要問合せ | 要問合せ |
事務所 タイルカーペット |
|
| 303 |
23.68坪 |
要問合せ | 要問合せ | 要問合せ |
事務所 タイルカーペット |
|
| 5 |
63.33坪 |
要問合せ | 要問合せ | 要問合せ |
事務所 タイルカーペット |
|
| 501・502 |
38.87坪 |
要問合せ | 要問合せ | 要問合せ |
事務所 タイルカーペット |
|
| 502 |
19.65坪 |
要問合せ | 要問合せ | 要問合せ |
事務所 タイルカーペット |
|
| 503 |
23.68坪 |
要問合せ | 要問合せ | 要問合せ |
事務所 タイルカーペット |
|
| 6 |
63.33坪 |
要問合せ | 要問合せ | 要問合せ |
事務所 タイルカーペット |
|
| 601 |
19.22坪 |
要問合せ | 要問合せ | 要問合せ |
事務所 タイルカーペット |
|
| 602 |
19.65坪 |
要問合せ | 要問合せ | 要問合せ |
事務所 タイルカーペット |
|
| 7 |
49.14坪 |
要問合せ | 要問合せ | 要問合せ |
事務所 タイルカーペット |
|
| 8 |
32.43坪 |
要問合せ | 要問合せ | 要問合せ |
事務所・店舗 タイルカーペット |
|
| 9 |
19坪 |
要問合せ | 要問合せ | 要問合せ |
事務所 タイルカーペット |
貸室面積合計 106.23坪
※複数の貸室合計も表示されます。
お電話でのお問い合わせ
03-6278-5609
平日9:00 ~ 18:00(土日祝除く)
STEP 1
お問い合わせ・ご相談
STEP 2
現地見学
STEP 3
ご契約・お手続き
STEP 4
引き渡し・運用サポート
近隣情報
- 郵便局
-
芝大門郵便局
東京都港区芝大門1-1-13
- 銀行
-
三菱UFJ銀行 新橋支店
東京都港区新橋4-3-1
物件概要
- 基準階坪数
- 63.33坪
- 耐震
- 対応済み
※1981年6月1日以降に確認申請された建物は新耐震基準に該当しますが、当サイトでは原則として1982年6月1日以降に竣工した物件を新耐震として表記しています。
設備詳細
- 空調
- 個別空調
- トイレ
- 男女別
- エレベーター
- 1基
主な入居テナント
- ル・グラシエルビルディング株式会社
スタッフコメント