| 間取り | 区画 | 面積 | 賃料 (管理費含) |
保証金・敷金 | 入居日 | 用途仕様 |
|---|---|---|---|---|---|---|
| 508 |
13.02坪 |
要問合せ | 要問合せ | 2026年07月01日 |
その他 OAフロアー |
|
| 519 |
16.15坪 |
要問合せ | 要問合せ | 即入居可能 |
その他 OAフロアー |
|
| 524 |
10.45坪 |
要問合せ | 要問合せ | 即入居可能 |
その他 OAフロアー |
|
| 基準 |
408.28坪 |
要問合せ | 要問合せ | 要問合せ |
事務所 OAフロアー |
|
| 5 |
408.27坪 |
要問合せ | 要問合せ | 要問合せ |
事務所 OAフロアー |
|
| 503 |
20.14坪 |
要問合せ | 要問合せ | 要問合せ |
その他 OAフロアー |
|
| 505 |
12.74坪 |
要問合せ | 要問合せ | 要問合せ |
その他 OAフロアー |
|
| 509 |
17.56坪 |
要問合せ | 要問合せ | 要問合せ |
その他 OAフロアー |
|
| 513 |
17.56坪 |
要問合せ | 要問合せ | 要問合せ |
その他 OAフロアー |
|
| 516 |
16.75坪 |
要問合せ | 要問合せ | 要問合せ |
事務所 OAフロアー |
|
| 522 |
13.19坪 |
要問合せ | 要問合せ | 要問合せ |
事務所 OAフロアー |
|
| 525 |
11.61坪 |
要問合せ | 要問合せ | 要問合せ |
事務所 OAフロアー |
|
| 527 |
11.63坪 |
要問合せ | 要問合せ | 要問合せ |
事務所 OAフロアー |
|
| 533 |
18.73坪 |
要問合せ | 要問合せ | 要問合せ |
事務所 OAフロアー |
|
| 6 |
408.27坪 |
要問合せ | 要問合せ | 要問合せ |
事務所 OAフロアー |
|
| 7 |
408.27坪 |
要問合せ | 要問合せ | 要問合せ |
事務所 OAフロアー |
|
| 8 |
408.27坪 |
要問合せ | 要問合せ | 要問合せ |
事務所 OAフロアー |
|
| 9 |
408.27坪 |
要問合せ | 要問合せ | 要問合せ |
事務所 OAフロアー |
|
| 10 |
408.27坪 |
要問合せ | 要問合せ | 要問合せ |
事務所 OAフロアー |
|
| 10A |
154.92坪 |
要問合せ | 要問合せ | 要問合せ |
事務所 OAフロアー |
|
| 10B |
82.24坪 |
要問合せ | 要問合せ | 要問合せ |
事務所 OAフロアー |
|
| 10BC |
165.37坪 |
要問合せ | 要問合せ | 要問合せ |
事務所 OAフロアー |
|
| 10C |
83.12坪 |
要問合せ | 要問合せ | 要問合せ |
事務所 OAフロアー |
|
| 10D |
87.97坪 |
要問合せ | 要問合せ | 要問合せ |
事務所 OAフロアー |
|
| 11 |
408.27坪 |
要問合せ | 要問合せ | 要問合せ |
事務所 OAフロアー |
|
| 12 |
408.27坪 |
要問合せ | 要問合せ | 要問合せ |
事務所 OAフロアー |
|
| 12A |
154.92坪 |
要問合せ | 要問合せ | 要問合せ |
事務所 OAフロアー |
|
| 12ABC |
320.3坪 |
要問合せ | 要問合せ | 要問合せ |
事務所 OAフロアー |
|
| 12BC |
165.36坪 |
要問合せ | 要問合せ | 要問合せ |
事務所 OAフロアー |
|
| 12D |
87.97坪 |
要問合せ | 要問合せ | 要問合せ |
事務所 OAフロアー |
|
| 13 |
83.12坪 |
要問合せ | 要問合せ | 要問合せ |
事務所 OAフロアー |
|
| 13 |
320.3坪 |
要問合せ | 要問合せ | 要問合せ |
事務所 OAフロアー |
|
| 13 |
87.97坪 |
要問合せ | 要問合せ | 要問合せ |
事務所 OAフロアー |
|
| 13AB |
237.16坪 |
要問合せ | 要問合せ | 要問合せ |
事務所 OAフロアー |
|
| 14 |
320.3坪 |
要問合せ | 要問合せ | 要問合せ |
事務所 OAフロアー |
|
| 14D |
87.97坪 |
要問合せ | 要問合せ | 要問合せ |
事務所 OAフロアー |
|
| 15 |
408.28坪 |
要問合せ | 要問合せ | 要問合せ |
事務所 OAフロアー |
|
| 16 |
408.28坪 |
要問合せ | 要問合せ | 要問合せ |
事務所 OAフロアー |
|
| 17 |
253.35坪 |
要問合せ | 要問合せ | 要問合せ |
事務所 OAフロアー |
|
| 17 |
87.97坪 |
要問合せ | 要問合せ | 要問合せ |
事務所 OAフロアー |
|
| 18 |
408.28坪 |
要問合せ | 要問合せ | 要問合せ |
事務所 OAフロアー |
|
| 19 |
408.27坪 |
要問合せ | 要問合せ | 要問合せ |
事務所 OAフロアー |
|
| 19AB |
237.16坪 |
要問合せ | 要問合せ | 要問合せ |
事務所 OAフロアー |
|
| 19ABC |
320.28坪 |
要問合せ | 要問合せ | 要問合せ |
事務所 OAフロアー |
|
| 19C |
83.12坪 |
要問合せ | 要問合せ | 要問合せ |
事務所 OAフロアー |
|
| 20 |
408.27坪 |
要問合せ | 要問合せ | 要問合せ |
事務所 OAフロアー |
|
| 21 |
408.27坪 |
要問合せ | 要問合せ | 要問合せ |
事務所 OAフロアー |
|
| 22 |
408.27坪 |
要問合せ | 要問合せ | 要問合せ |
事務所 OAフロアー |
|
| 22 |
154.92坪 |
要問合せ | 要問合せ | 要問合せ |
事務所 OAフロアー |
|
| 23 |
408.27坪 |
要問合せ | 要問合せ | 要問合せ |
事務所 OAフロアー |
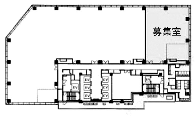
貸室面積合計 39.62坪
※複数の貸室合計も表示されます。
お電話でのお問い合わせ
03-6278-5609
平日9:00 ~ 18:00(土日祝除く)
STEP 1
お問い合わせ・ご相談
STEP 2
現地見学
STEP 3
ご契約・お手続き
STEP 4
引き渡し・運用サポート
近隣情報
- 郵便局
-
虎ノ門郵便局
東京都港区虎ノ門1-7-12
- 銀行
-
みずほ銀行 虎ノ門支店
東京都港区虎ノ門1-2-3
物件概要
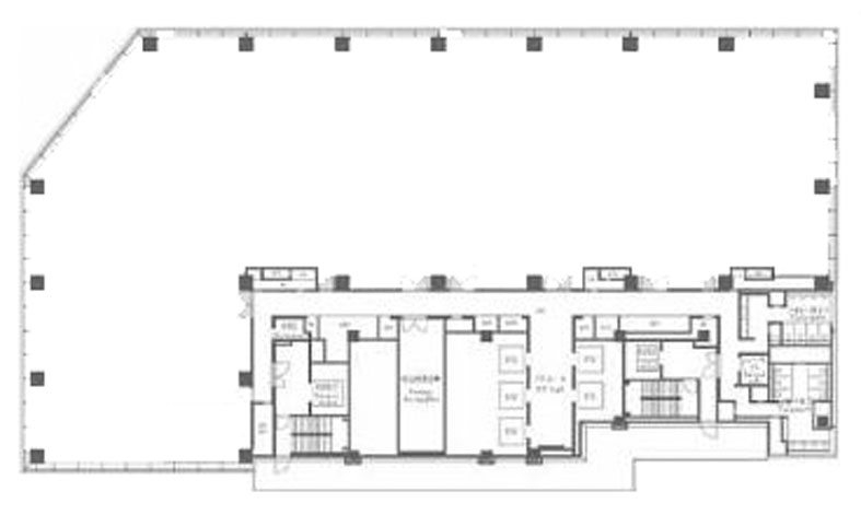
- 基準階坪数
- 408.28坪
- 耐震
- 対応済み
※1981年6月1日以降に確認申請された建物は新耐震基準に該当しますが、当サイトでは原則として1982年6月1日以降に竣工した物件を新耐震として表記しています。
設備詳細
- 空調
- 個別空調
- トイレ
- 男女別
- エレベーター
- 7基
主な入居テナント
- 株式会社オープンアップコンストラクション
- 株式会社ビーネックステクノロジーズ
- 株式会社コミット
スタッフコメント