ライオンズステーションプラザ半蔵門

情報更新日:2026年05月20日
物件名
ライオンズステーションプラザ半蔵門
所在地
東京都千代田区麹町1-5-4
アクセス
半蔵門線 半蔵門駅 徒歩1分
有楽町線 麹町駅 徒歩6分
竣工年月
1982年06月
規模
地上10階 / 地下1階

フォトギャラリー

間取り 区画 面積 賃料
(管理費含)
保証金・敷金 入居日 用途仕様
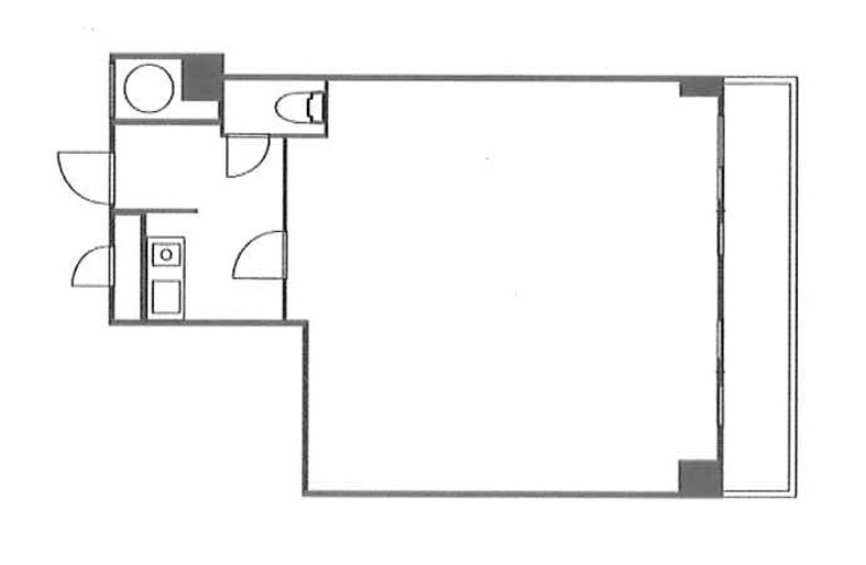
102 51.08
要問合せ 10ヶ月 要問合せ 事務所
-
B1 34.29
要問合せ 要問合せ 要問合せ 事務所・店舗
-
7 17.75
要問合せ 要問合せ 要問合せ 事務所
-

貸室面積合計 51.08

※複数の貸室合計も表示されます。

お電話でのお問い合わせ

03-6278-5609

平日9:00 ~ 18:00(土日祝除く)

STEP 1
お問い合わせ・ご相談
STEP 2
現地見学
STEP 3
ご契約・お手続き
STEP 4
引き渡し・運用サポート

近隣情報

郵便局
半蔵門駅前郵便局
東京都千代田区麹町2-12
銀行
三菱UFJ銀行 麹町支店
東京都千代田区麹町4-1

物件概要

耐震
対応済み

※1981年6月1日以降に確認申請された建物は新耐震基準に該当しますが、当サイトでは原則として1982年6月1日以降に竣工した物件を新耐震として表記しています。

設備詳細

空調
-
トイレ
-
エレベーター
-

主な入居テナント

  • 株式会社日本義眼研究所
スタッフコメント
東京メトロ半蔵門線「半蔵門」駅から徒歩1分に位置し、麹町エリアも徒歩圏内で利用できる立地です。周辺は官公庁やオフィスが点在するエリアで、都心でありながら比較的落ち着いた街並みが広がっています。駅からの距離が分かりやすく、来訪時にも案内しやすい点も特色の一つです。立地条件を重視しつつ、都心拠点としての使い勝手を検討しやすいオフィス物件です。