パークコート浜離宮ザタワー

情報更新日:2026年05月18日
物件名
パークコート浜離宮ザタワー
所在地
東京都港区浜松町1-3-2
アクセス
山手線 浜松町駅 徒歩5分
都営大江戸線 大門駅 徒歩5分
竣工年月
2019年02月
規模
地上37階 / 地下1階

フォトギャラリー

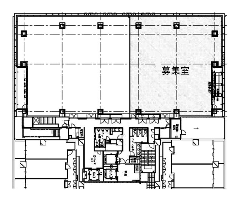
間取り 区画 面積 賃料
(管理費含)
保証金・敷金 入居日 用途仕様
3 95.36
要問合せ 12ヶ月 即入居可能 事務所
OAフロアー
1 33.34
要問合せ 要問合せ 要問合せ 事務所・店舗
-
1~2 66.62
要問合せ 要問合せ 要問合せ 事務所・店舗
OAフロアー
2 33.28
要問合せ 要問合せ 要問合せ 事務所・店舗
-
3 95.36
要問合せ 要問合せ 要問合せ 事務所
OAフロアー
4 214
要問合せ 要問合せ 要問合せ 事務所
OAフロアー

貸室面積合計 95.36

※複数の貸室合計も表示されます。

お電話でのお問い合わせ

03-6278-5609

平日9:00 ~ 18:00(土日祝除く)

STEP 1
お問い合わせ・ご相談
STEP 2
現地見学
STEP 3
ご契約・お手続き
STEP 4
引き渡し・運用サポート

近隣情報

郵便局
芝大門郵便局
東京都港区芝大門1-1-13
銀行
三井住友銀行 浜松町支店
東京都港区浜松町2-3-1

物件概要

耐震
対応済み

※1981年6月1日以降に確認申請された建物は新耐震基準に該当しますが、当サイトでは原則として1982年6月1日以降に竣工した物件を新耐震として表記しています。

設備詳細

空調
個別空調
トイレ
-
エレベーター
-

主な入居テナント

  • 現在テナント情報はありません
スタッフコメント
浜松町エリアに位置し、浜松町駅から徒歩5分の立地です。大門駅も徒歩圏内に含まれ、複数路線を利用した移動に対応しやすい位置関係となっています。2019年竣工、地上37階建ての建物で、周辺でも存在感のある規模となっています。空調は個別空調を採用しており、区画ごとの使い方を想定しやすい構成です。高層建物としてのスケールと交通条件が整理されています。都心部での利用を前提に、条件面を整理しやすい内容です。