JPビル

情報更新日:2026年05月15日
物件名
JPビル
所在地
東京都千代田区二番町5-7
アクセス
有楽町線 麹町駅 徒歩1分
総武線 四ツ谷駅 徒歩7分
中央線 四ツ谷駅 徒歩7分
半蔵門線 半蔵門駅 徒歩7分
竣工年月
2002年01月
規模
地上9階 / 地下1階

フォトギャラリー

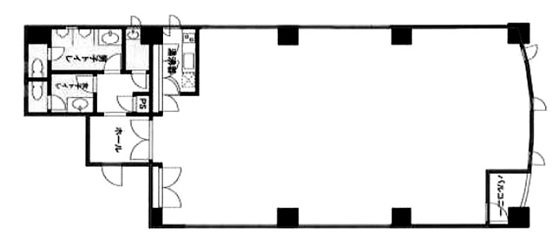
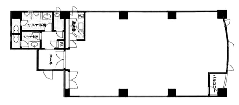
間取り 区画 面積 賃料
(管理費含)
保証金・敷金 入居日 用途仕様
9 32.07
18,000円/坪
577,260円(税別)
3ヶ月 要問合せ 事務所
OAフロアー
3 48.95
要問合せ 要問合せ 要問合せ 事務所
OAフロアー
4 48.95
要問合せ 要問合せ 要問合せ 事務所
OAフロアー
5 48.95
要問合せ 要問合せ 要問合せ 事務所
OAフロアー
6 48.95
要問合せ 要問合せ 要問合せ 事務所
OAフロアー
7 41.72
要問合せ 要問合せ 要問合せ 事務所
OAフロアー

貸室面積合計 32.07

※複数の貸室合計も表示されます。

お電話でのお問い合わせ

03-6278-5609

平日9:00 ~ 18:00(土日祝除く)

STEP 1
お問い合わせ・ご相談
STEP 2
現地見学
STEP 3
ご契約・お手続き
STEP 4
引き渡し・運用サポート

近隣情報

郵便局
千代田一番町郵便局
東京都千代田区一番町10-22
銀行
三菱UFJ銀行 麹町支店
東京都千代田区麹町4-1

物件概要

基準階坪数
48.95坪
耐震
対応済み

※1981年6月1日以降に確認申請された建物は新耐震基準に該当しますが、当サイトでは原則として1982年6月1日以降に竣工した物件を新耐震として表記しています。

設備詳細

空調
個別空調
トイレ
男女別
エレベーター
あり

主な入居テナント

  • 現在テナント情報はありません
スタッフコメント
東京メトロ有楽町線・麹町駅から徒歩1分、四ツ谷駅や半蔵門駅も徒歩圏内にあり、複数路線を使い分けやすい立地です。個別空調を採用し、日々の利用に合わせた室内調整がしやすい点が利点で、男女別トイレなども備え、基本的な設備面も整っています。落ち着いた街並みに位置し、交通利便性と環境面のバランスが取れた存在です。