パリスビル

情報更新日:2026年05月21日
物件名
パリスビル
所在地
東京都千代田区富士見1-7-10
アクセス
総武線 飯田橋駅 徒歩5分
東西線 飯田橋駅 徒歩5分
竣工年月
1986年08月
規模
地上5階

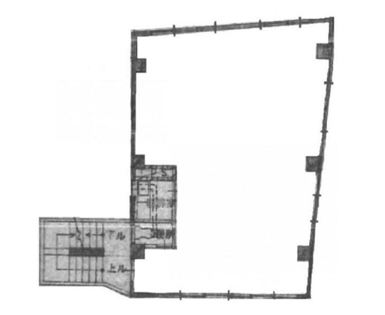
フォトギャラリー

間取り 区画 面積 賃料
(管理費含)
保証金・敷金 入居日 用途仕様
3 19.06
要問合せ 6ヶ月 即入居可能 事務所
タイルカーペット
2 19.06
要問合せ 要問合せ 要問合せ 事務所
タイルカーペット

貸室面積合計 19.06

※複数の貸室合計も表示されます。

お電話でのお問い合わせ

03-6278-5609

平日9:00 ~ 18:00(土日祝除く)

STEP 1
お問い合わせ・ご相談
STEP 2
現地見学
STEP 3
ご契約・お手続き
STEP 4
引き渡し・運用サポート

近隣情報

郵便局
飯田橋郵便局
東京都千代田区富士見2-10-2
銀行
みずほ銀行 飯田橋支店
東京都新宿区下宮比町2-1

物件概要

基準階坪数
19.06坪
耐震
対応済み

※1981年6月1日以降に確認申請された建物は新耐震基準に該当しますが、当サイトでは原則として1982年6月1日以降に竣工した物件を新耐震として表記しています。

設備詳細

空調
個別空調
トイレ
-
エレベーター
-

主な入居テナント

  • 現在テナント情報はありません
スタッフコメント
千代田区富士見1丁目に位置する「パリスビル」は、白いタイル貼りの外観と角地立地を活かした開放感のある佇まいが印象的なオフィスビルです。低層部には植栽を配し、街並みにやさしく溶け込むデザインも魅力。JR中央・総武線、東京メトロ東西線「飯田橋」駅からともに徒歩5分と、複数路線が利用可能な利便性の高い立地です。個別空調に加え機械警備を導入しており、快適性と安心感を兼ね備えたオフィス環境が整っています。