VORT神保町IV

情報更新日:2026年01月22日
物件名
VORT神保町IV
所在地
東京都千代田区神田神保町1-22-2
アクセス
半蔵門線 神保町駅 徒歩3分
都営三田線 神保町駅 徒歩3分
千代田線 新御茶ノ水駅 徒歩7分
都営新宿線 小川町駅 徒歩7分
総武線 御茶ノ水駅 徒歩8分
中央線 御茶ノ水駅 徒歩8分
竣工年月
2022年06月
規模
地上11階

フォトギャラリー

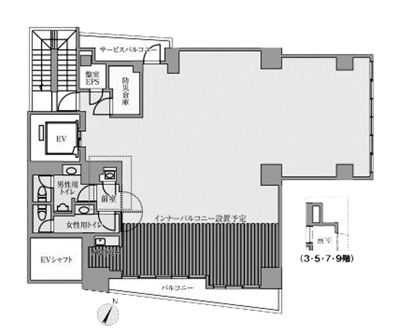
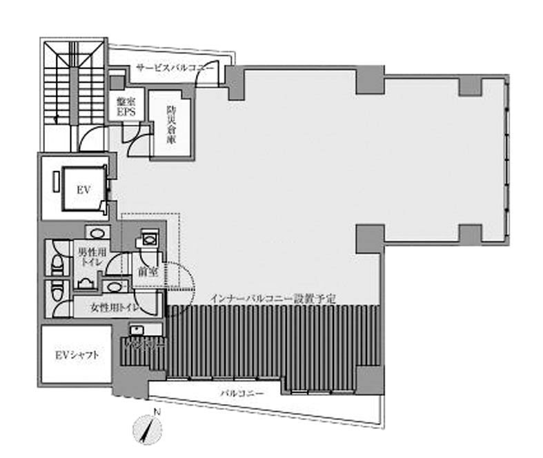
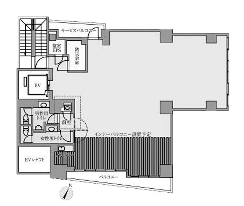
間取り 区画 面積 賃料
(管理費含)
保証金・敷金 入居日 用途仕様
3 39.44
要問合せ 5ヶ月 2026年04月01日 事務所
OAフロアー
5 39.44
要問合せ 5ヶ月 2026年07月01日 事務所
OAフロアー
6 39.48
要問合せ 5ヶ月 2026年04月01日 事務所
OAフロアー
2 39.48
要問合せ 要問合せ 要問合せ 事務所
OAフロアー
4 39.62
要問合せ 要問合せ 要問合せ 事務所
OAフロアー
7 39.58
要問合せ 要問合せ 要問合せ 事務所
OAフロアー
8 39.62
要問合せ 要問合せ 要問合せ 事務所
OAフロアー
9 39.58
要問合せ 要問合せ 要問合せ 事務所
OAフロアー

貸室面積合計 118.36

※複数の貸室合計も表示されます。

お電話でのお問い合わせ

03-6278-5609

平日9:00 ~ 18:00(土日祝除く)

STEP 1
お問い合わせ・ご相談
STEP 2
現地見学
STEP 3
ご契約・お手続き
STEP 4
引き渡し・運用サポート

近隣情報

郵便局
神田南神保町郵便局
東京都千代田区神田神保町1-13
銀行
三井住友銀行 神田支店
東京都千代田区神田小川町3-12

物件概要

基準階坪数
39.4坪
耐震
対応済み

※1981年6月1日以降に確認申請された建物は新耐震基準に該当しますが、当サイトでは原則として1982年6月1日以降に竣工した物件を新耐震として表記しています。

設備詳細

空調
個別空調
トイレ
男女別
エレベーター
2基

主な入居テナント

  • 株式会社アーリーリフレクション
  • R&F株式会社
スタッフコメント
神保町駅から徒歩3分に位置し、周辺には複数路線が集まるエリアのため、都心各方面への移動もしやすい立地です。2022年竣工の新しさを感じる建物です。個別空調を採用しており、フロアごとの利用形態に応じた室内調整が可能です。男女別トイレやエレベーター2基を備え、建物規模に見合った設備構成となっています。新しさと利便性のバランスが取れており、安定した業務利用を想定しやすい一棟です。