コーンズハウスII

情報更新日:2026年05月18日
物件名
コーンズハウスII
所在地
東京都港区芝3-5-1
アクセス
都営三田線 芝公園駅 徒歩1分
都営大江戸線 赤羽橋駅 徒歩6分
都営浅草線 三田駅 徒歩6分
京浜東北・根岸線 田町駅 徒歩12分
竣工年月
2001年04月
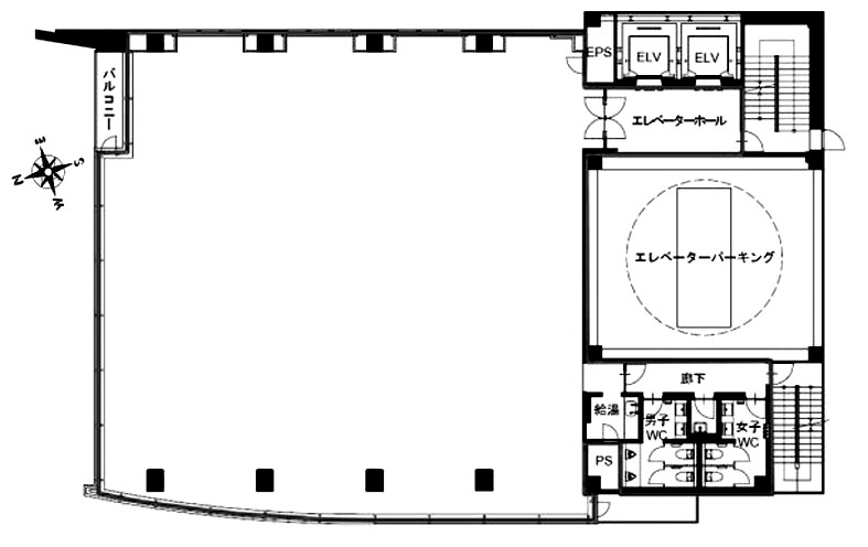
規模
地上7階 / 地下1階

フォトギャラリー

間取り 区画 面積 賃料
(管理費含)
保証金・敷金 入居日 用途仕様
3 135.85
要問合せ 12ヶ月 即入居可能 事務所
OAフロアー
4 135.85
要問合せ 12ヶ月 即入居可能 事務所
OAフロアー
5 135.85
要問合せ 12ヶ月 即入居可能 事務所
OAフロアー
6 135.85
要問合せ 12ヶ月 即入居可能 事務所
OAフロアー

貸室面積合計 543.4

※複数の貸室合計も表示されます。

お電話でのお問い合わせ

03-6278-5609

平日9:00 ~ 18:00(土日祝除く)

STEP 1
お問い合わせ・ご相談
STEP 2
現地見学
STEP 3
ご契約・お手続き
STEP 4
引き渡し・運用サポート

近隣情報

郵便局
芝三郵便局
東京都港区芝3-4-13(KIJビル1階)
銀行
三菱UFJ銀行 田町支店
東京都港区芝5-33-11

物件概要

基準階坪数
135.85坪
耐震
対応済み

※1981年6月1日以降に確認申請された建物は新耐震基準に該当しますが、当サイトでは原則として1982年6月1日以降に竣工した物件を新耐震として表記しています。

設備詳細

空調
-
トイレ
男女別
エレベーター
2基

主な入居テナント

  • コーンズ・モータース株式会社
スタッフコメント
芝公園駅から徒歩1分に位置し、日々の移動を短時間でまとめやすい立地です。赤羽橋駅や三田駅も徒歩圏内にあり、行き先に応じて動線を組み替えやすくなっています。2001年竣工、地上7階建ての建物で、芝エリアに立地しています。フロア規模を把握しやすく、用途や体制に応じた使い分けを検討しやすい点が挙げられます。駅距離と建物条件を踏まえ、業務拠点としての利用を具体的に検討しやすい内容です。