PMO浜松町III

情報更新日:2026年05月19日
物件名
PMO浜松町III
所在地
東京都港区浜松町2-10-6
アクセス
山手線 浜松町駅 徒歩3分
都営大江戸線 大門駅 徒歩7分
竣工年月
2023年10月
規模
地上11階

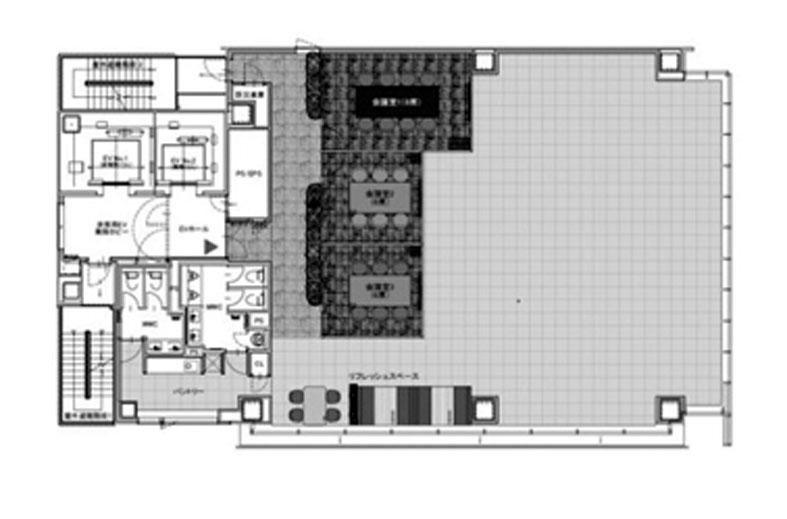
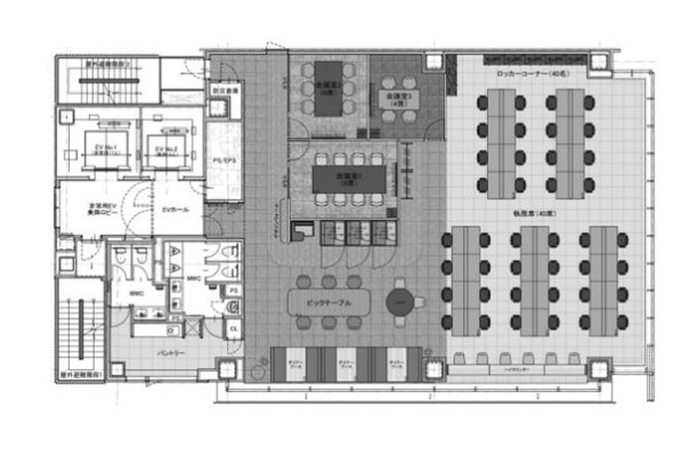
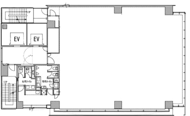
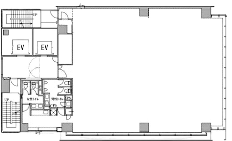
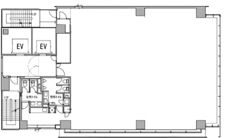
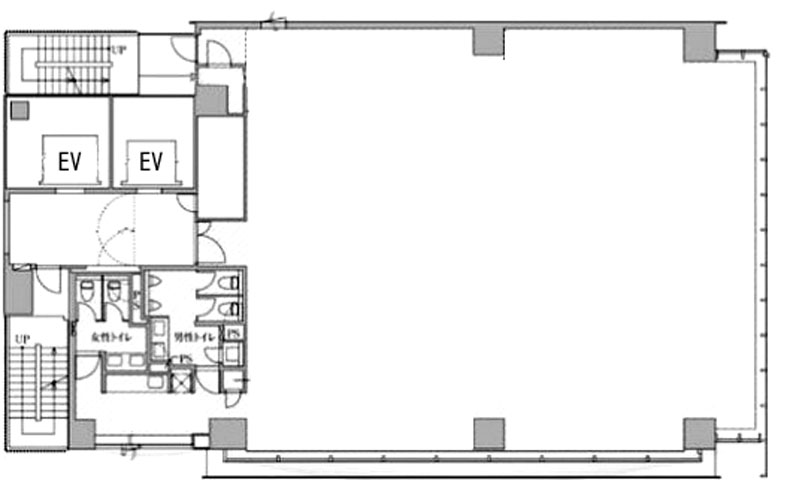
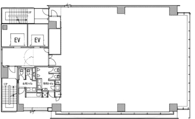
フォトギャラリー

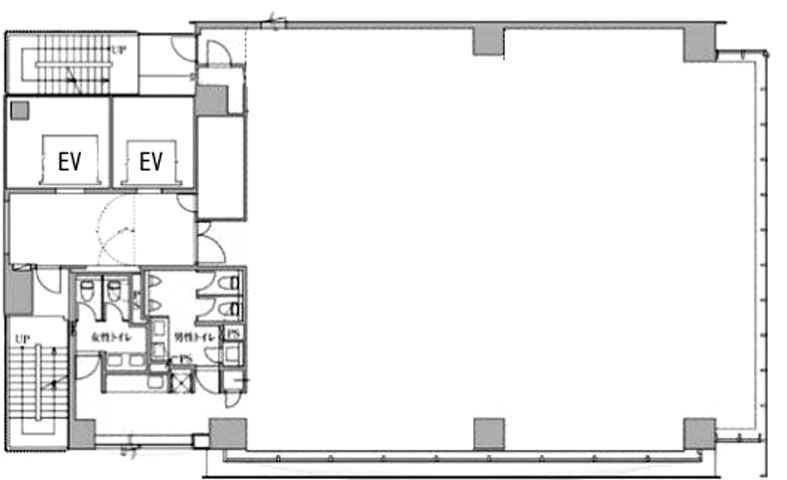
間取り 区画 面積 賃料
(管理費含)
保証金・敷金 入居日 用途仕様
8 92.71
要問合せ 要問合せ 2026年09月01日 事務所
OAフロアー
2 92.71
要問合せ 要問合せ 要問合せ 事務所
OAフロアー
3 92.71
要問合せ 要問合せ 要問合せ 事務所
OAフロアー
4 92.71
要問合せ 要問合せ 要問合せ 事務所
OAフロアー
5 92.71
要問合せ 要問合せ 要問合せ 事務所
OAフロアー
6 92.71
要問合せ 要問合せ 要問合せ 事務所
OAフロアー
7 92.71
要問合せ 要問合せ 要問合せ 事務所
OAフロアー
9 92.71
要問合せ 要問合せ 要問合せ 事務所
OAフロアー
10 92.71
要問合せ 要問合せ 要問合せ 事務所
OAフロアー
11 92.71
要問合せ 要問合せ 要問合せ 事務所
OAフロアー

貸室面積合計 92.71

※複数の貸室合計も表示されます。

お電話でのお問い合わせ

03-6278-5609

平日9:00 ~ 18:00(土日祝除く)

STEP 1
お問い合わせ・ご相談
STEP 2
現地見学
STEP 3
ご契約・お手続き
STEP 4
引き渡し・運用サポート

近隣情報

郵便局
世界貿易センター内郵便局
東京都港区浜松町2-4-1
銀行
みずほ銀行 浜松町支店
東京都港区浜松町2-4-1

物件概要

基準階坪数
92.71坪
耐震
対応済み

※1981年6月1日以降に確認申請された建物は新耐震基準に該当しますが、当サイトでは原則として1982年6月1日以降に竣工した物件を新耐震として表記しています。

設備詳細

空調
個別空調
トイレ
男女別
エレベーター
13基

主な入居テナント

  • santec Holdings株式会社
  • 株式会社コスモサミット
  • 株式会社Quollio Technologies
  • 株式会社PREVENT JAPAN
  • hep East Asia 株式会社
スタッフコメント
浜松町駅から徒歩3分の立地で、都心主要エリアへの移動を重視しやすい位置です。大門駅も徒歩圏内にあり、複数路線を前提とした動線を組み立てやすくなっています。2023年に竣工した地上11階建ての建物で、近年の業務計画にも取り入れやすい構成です。空調は個別方式を採用しています。建物規模と交通条件のバランスを踏まえ、都心での業務拠点として検討を進めやすい環境です。