麻布台ヒルズ ガーデンプラザB(C-2街区)

情報更新日:2026年05月19日
物件名
麻布台ヒルズ ガーデンプラザB(C-2街区)
所在地
東京都港区虎ノ門5-9-1
アクセス
日比谷線 神谷町駅 徒歩1分
南北線 六本木一丁目駅 徒歩10分
竣工年月
2023年06月
規模
地上8階 / 地下3階

フォトギャラリー

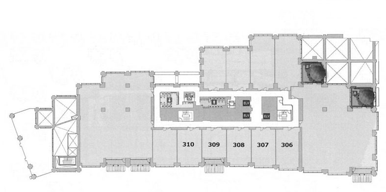
間取り 区画 面積 賃料
(管理費含)
保証金・敷金 入居日 用途仕様
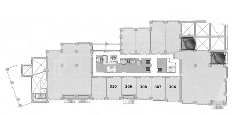
306 27.2
54,000円/坪
1,468,800円(税別)
12ヶ月 即入居可能 事務所
OAフロアー
3 35.3
要問合せ 要問合せ 要問合せ 事務所
OAフロアー
304 37.21
要問合せ 要問合せ 要問合せ 事務所
OAフロアー
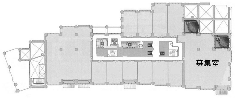
305 163.28
要問合せ 要問合せ 要問合せ 事務所
OAフロアー
307 25.43
要問合せ 要問合せ 要問合せ 事務所
OAフロアー
308 24.65
要問合せ 要問合せ 要問合せ 事務所
OAフロアー
309 20.37
要問合せ 要問合せ 要問合せ 事務所
OAフロアー
310 24.65
要問合せ 要問合せ 要問合せ 事務所
OAフロアー

貸室面積合計 27.2

※複数の貸室合計も表示されます。

お電話でのお問い合わせ

03-6278-5609

平日9:00 ~ 18:00(土日祝除く)

STEP 1
お問い合わせ・ご相談
STEP 2
現地見学
STEP 3
ご契約・お手続き
STEP 4
引き渡し・運用サポート

近隣情報

郵便局
神谷町郵便局
東京都港区虎ノ門4-2-12
銀行
三菱UFJ銀行 虎ノ門支店
東京都港区虎ノ門2-3-17

物件概要

耐震
対応済み

※1981年6月1日以降に確認申請された建物は新耐震基準に該当しますが、当サイトでは原則として1982年6月1日以降に竣工した物件を新耐震として表記しています。

設備詳細

空調
個別空調
トイレ
男女別
エレベーター
3基

主な入居テナント

  • ケップルグループ
  • 東京大学エッジキャピタルパートナーズ
  • 株式会社Anfini
  • DIMENSION株式会社
スタッフコメント
港区虎ノ門五丁目に位置し、東京メトロ日比谷線神谷町駅徒歩1分と高い交通利便性を備えた立地です。六本木一丁目駅も徒歩圏内で利用でき、都心各方面への移動を前提とした動線を組み立てやすい環境といえます。地下3階地上8階建てのS造で、桜田通りに面した角地に建っています。個別空調や男女別トイレ、エレベーター3基、機械警備を備え、2023年竣工の建物として共用部の整備状況も良好です。立地と建物特性を踏まえ、都心での業務拠点として検討しやすいオフィスビルです。