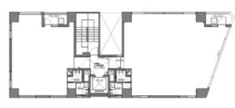
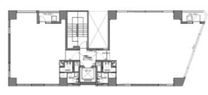
| 間取り | 区画 | 面積 | 賃料 (管理費含) |
保証金・敷金 | 入居日 | 用途仕様 |
|---|---|---|---|---|---|---|
| 102 |
17.27坪 |
23,000円/坪 397,210円(税別) |
6ヶ月 | 2026年06月 中旬 |
事務所 OAフロアー |
|
| 901 |
27.76坪 |
23,000円/坪 638,480円(税別) |
6ヶ月 | 即入居可能 |
事務所 OAフロアー |
|
| 101 |
25.45坪 |
要問合せ | 要問合せ | 要問合せ |
事務所 OAフロアー |
|
| 101~102 |
42.72坪 |
要問合せ | 要問合せ | 要問合せ |
事務所・店舗 OAフロアー |
|
| 202 |
19.46坪 |
要問合せ | 要問合せ | 要問合せ |
事務所 OAフロアー |
|
| 301 |
28.48坪 |
要問合せ | 要問合せ | 要問合せ |
事務所 OAフロアー |
|
| 301+302 |
47.94坪 |
要問合せ | 要問合せ | 要問合せ |
事務所 OAフロアー |
|
| 302 |
19.46坪 |
要問合せ | 要問合せ | 要問合せ |
事務所 OAフロアー |
|
| 401 |
28.48坪 |
要問合せ | 要問合せ | 要問合せ |
事務所 OAフロアー |
|
| 401~402 |
47.94坪 |
要問合せ | 要問合せ | 要問合せ |
事務所 OAフロアー |
|
| 402 |
19.46坪 |
要問合せ | 要問合せ | 要問合せ |
事務所 OAフロアー |
|
| 501 |
28.48坪 |
要問合せ | 要問合せ | 要問合せ |
事務所 OAフロアー |
|
| 501~502 |
47.94坪 |
要問合せ | 要問合せ | 要問合せ |
事務所 OAフロアー |
|
| 502 |
19.46坪 |
要問合せ | 要問合せ | 要問合せ |
事務所 OAフロアー |
|
| 601 |
28.48坪 |
要問合せ | 要問合せ | 要問合せ |
事務所 OAフロアー |
|
| 601+602 |
47.94坪 |
要問合せ | 要問合せ | 要問合せ |
事務所 OAフロアー |
|
| 602 |
19.46坪 |
要問合せ | 要問合せ | 要問合せ |
事務所 OAフロアー |
|
| 701 |
28.48坪 |
要問合せ | 要問合せ | 要問合せ |
事務所 OAフロアー |
|
| 801 |
28.48坪 |
要問合せ | 要問合せ | 要問合せ |
事務所 OAフロアー |
|
| 802 |
19.46坪 |
要問合せ | 要問合せ | 要問合せ |
事務所 OAフロアー |
|
| 902 |
18.96坪 |
要問合せ | 要問合せ | 要問合せ |
事務所 OAフロアー |
貸室面積合計 45.03坪
※複数の貸室合計も表示されます。
お電話でのお問い合わせ
03-6278-5609
平日9:00 ~ 18:00(土日祝除く)
STEP 1
お問い合わせ・ご相談
STEP 2
現地見学
STEP 3
ご契約・お手続き
STEP 4
引き渡し・運用サポート
近隣情報
- 郵便局
-
千代田岩本町郵便局
東京都千代田区岩本町2-11-9
- 銀行
-
三菱UFJ銀行 神田駅前支店
東京都千代田区神田鍛冶町3-6-3
物件概要
- 耐震
- 対応済み
※1981年6月1日以降に確認申請された建物は新耐震基準に該当しますが、当サイトでは原則として1982年6月1日以降に竣工した物件を新耐震として表記しています。
設備詳細
- 空調
- 個別空調
- トイレ
- 男女別
- エレベーター
- 1基
主な入居テナント
- ジーティーレーシング株式会社
- 株式会社ハセッパー技研 営業本部
- コア・ライフプランニング株式会社 東京第一支社
- ビジネス・カタリスト株式会社 秋葉原オフィス
スタッフコメント