スヂノビル

情報更新日:2026年05月08日
物件名
スヂノビル
所在地
東京都千代田区岩本町3-7-2
アクセス
都営新宿線 岩本町駅 徒歩2分
山手線 秋葉原駅 徒歩5分
総武線 浅草橋駅 徒歩7分
竣工年月
1996年10月
規模
地上7階 / 地下1階

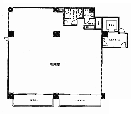
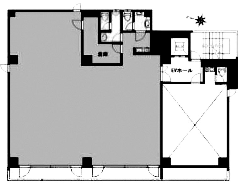
フォトギャラリー

間取り 区画 面積 賃料
(管理費含)
保証金・敷金 入居日 用途仕様
202 51.34
18,500円/坪
949,790円(税別)
10ヶ月 即入居可能 事務所・店舗
OAフロアー
B1 12.37
要問合せ 要問合せ 要問合せ 事務所
OAフロアー
1 7.75
要問合せ 要問合せ 要問合せ 事務所
OAフロアー
201 13.8
要問合せ 要問合せ 要問合せ 事務所
OAフロアー
301 13.6
要問合せ 要問合せ 要問合せ 事務所
OAフロアー
302 51.34
要問合せ 要問合せ 要問合せ 事務所
OAフロアー
4 50
要問合せ 要問合せ 要問合せ 事務所
OAフロアー
401 13.8
要問合せ 要問合せ 要問合せ 事務所
OAフロアー
402 51.34
要問合せ 要問合せ 要問合せ 事務所
OAフロアー
501 12.95
要問合せ 要問合せ 要問合せ 事務所
OAフロアー
502 48.34
要問合せ 要問合せ 要問合せ 事務所・店舗
OAフロアー
6 40.91
要問合せ 要問合せ 要問合せ 事務所
OAフロアー
7 48.34
要問合せ 要問合せ 要問合せ 事務所
OAフロアー

貸室面積合計 51.34

※複数の貸室合計も表示されます。

お電話でのお問い合わせ

03-6278-5609

平日9:00 ~ 18:00(土日祝除く)

STEP 1
お問い合わせ・ご相談
STEP 2
現地見学
STEP 3
ご契約・お手続き
STEP 4
引き渡し・運用サポート

近隣情報

郵便局
東神田郵便局
東京都千代田区東神田2-4-5
銀行
三菱UFJ銀行 神田駅前支店
東京都千代田区神田鍛冶町3-6-3

物件概要

耐震
対応済み

※1981年6月1日以降に確認申請された建物は新耐震基準に該当しますが、当サイトでは原則として1982年6月1日以降に竣工した物件を新耐震として表記しています。

設備詳細

空調
個別空調
トイレ
男女別
エレベーター
1基

主な入居テナント

  • 株式会社ルック
  • 株式会社ティ・アンド・エム
  • 株式会社ハセッパー販売
  • 株式会社システムエッジ
  • 淡路技建株式会社
スタッフコメント
東京都千代田区岩本町3丁目の「スヂノビル」は、落ち着いた色調の外壁と整った窓割りが印象的なオフィスビルです。エントランスは石張りを基調とした端正な佇まいで、来訪者に清潔感のある印象を与えます。都営新宿線「岩本町」駅徒歩2分をはじめ、秋葉原・浅草橋も利用可能な交通利便性の高さが魅力。個別空調、OAフロア、男女別トイレ、機械警備を備え、快適性と安心感を兼ね備えた執務環境です。