ARA南青山プレイス

情報更新日:2026年04月23日
物件名
ARA南青山プレイス
所在地
東京都港区南青山3-12-11
アクセス
銀座線 表参道駅 徒歩3分
竣工年月
2019年08月
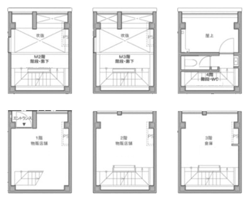
規模
地上4階

フォトギャラリー

間取り 区画 面積 賃料
(管理費含)
保証金・敷金 入居日 用途仕様
一棟 22.15
要問合せ 8ヶ月 即入居可能 店舗
-

貸室面積合計 22.15

※複数の貸室合計も表示されます。

お電話でのお問い合わせ

03-6278-5609

平日9:00 ~ 18:00(土日祝除く)

STEP 1
お問い合わせ・ご相談
STEP 2
現地見学
STEP 3
ご契約・お手続き
STEP 4
引き渡し・運用サポート

近隣情報

郵便局
外苑前郵便局
東京都港区南青山2-27-23
銀行
三菱UFJ銀行 青山支店
東京都港区北青山3-6-1

物件概要

基準階坪数
22.15坪
耐震
対応済み

※1981年6月1日以降に確認申請された建物は新耐震基準に該当しますが、当サイトでは原則として1982年6月1日以降に竣工した物件を新耐震として表記しています。

設備詳細

空調
-
トイレ
-
エレベーター
-

主な入居テナント

  • 現在テナント情報はありません
スタッフコメント
港区南青山三丁目に位置し、東京メトロ銀座線表参道駅徒歩3分と高い交通利便性を備えた立地です。駅周辺の動線に近く、通勤や来訪を想定した移動計画を立てやすい環境といえます。地上4階建てのS造で、ガラス張りの外観が南青山エリアの街並みに調和しています。コンパクトな建物規模のためフロア構成を把握しやすく、立地条件を重視した柔軟な運用を検討しやすいオフィスビルです。